- Tylko online
Masz pytania? Chciałbyś negocjować cenę
Zadzwoń! 577 575 011
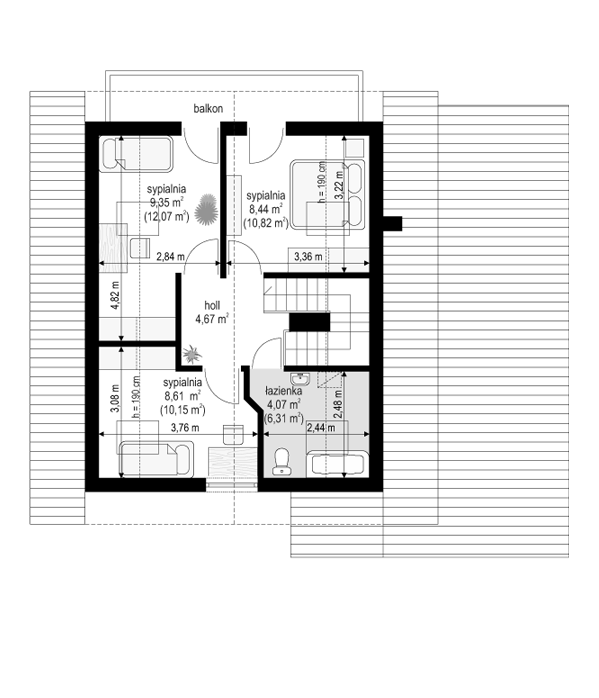
Projekt domu D03 z Garażem stanowi rozbudowaną wersję projektu D03. Do pierwotnego projektu dodano garaż i pomieszczenie gospodarcze mogące pełnić rolę kotłowni. Na parterze mieści się duży salon z kominkiem i otwarta kuchnią. Na poddaszu zaplanowano trzy sypialnie. Występują dwie wersje ogrzewania - kocioł gazowy oraz na paliwo stałe. Dostępne jest także odbicie lustrzane projektu D03 z Garażem, oraz wariant z pomieszczeniem gospodarczym za garażem i z lukarnami w dachu. Zapraszamy do zapoznania się z pełną ofertą pracowni MG Projekt: D03, D03 Grześ drewniany. Uwaga! Wariant klasyczny projektu dostępny jest z ogrzewaniem elektrycznym - wariant projektu z piecem gazowym w łazience na poddaszu!
W opisie znalezłem informację, że dom można podpiwniczyć. Czy gdzieś jest dostępny kosztorys dla takiej opcji? I czy da sie wtedy przenieśc kotłownię na dół? Zależy mi na tym ze względu na bezpieczeństwo dzieci

Nie mam nic przeciwko aneksom w salonie ale ten jest maleńki. Zabrać trochę z kotłowni i pociągnąć szafki kuchenne dalej. Da się tak?