- Tylko online
Masz pytania? Chciałbyś negocjować cenę
Zadzwoń! 577 575 011
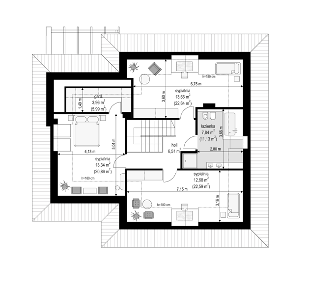
Projekt domu Odwrócony, to dom jednorodzinny przeznaczony dla czteroosobowej rodziny, parterowy z użytkowym poddaszem, na działkę w wjazdem od południa. Dom został zaprojektowany na planie zbliżonym do litery T. Parterowa bryła z poddaszem przykryta jest wielospadowym symetrycznym dachem. Dach domu ustawiony jest na wysokich ściankach kolankowych, dzięki czemu na poddaszu uzyskano zupełnie ładne pokoje. Nowoczesna architektura łączy w sobie urozmaiconą sylwetkę budynku, ciekawe detale i modne materiały i kolorystykę. Duże przeszklenia okien i drewniane okładziny ścian są niewątpliwą ozdobą elewacji. Projekt domu „Odwrócony”, jak sama nazwa wskazuje, został zaprojektowany tak, żeby nadawał się na działkę z niekorzystnym usytuowaniem względem stron świata - na przykład z drogą dojazdową od południa. Projekt domu Odwrócony można wykorzystać na szerszej działce z ogródkiem z boku, lub na działce z ogrodem przed domem, albo posadowić go na działce z ogrodem z tyłu - tak jak zazwyczaj inwestorzy się decydują. Wówczas dzięki dużym przeszkleniom części dziennej od frontu i z boku, wnętrze domu i tak pozostanie dobrze oświetlone. Niekorzystna działa wcale nie musi być złym rozwiązaniem - wystarczy mieć dobry projekt, a „Odwrócony” jest doskonałą propozycją :). Tarasy można wykonać tak jak to pokazano w projekcie - z dwóch stron domu, można też zdecydować się na jeden taras. Wnętrze domu to otwarta przestrzeń salonu, holu, jadalni i bardzo ładnej kuchni ze spiżarnią. W centralnym miejscu planu mamy eleganckie schody na poddasze. Z przedsionka z szatnią przechodzimy z kolei w bok do garażu i pomieszczenia gospodarczego. Od tylnej ogrodowej strony zaprojektowano urocze patio z pergolą opartą na wystającej ze ściany belce. Na poddaszu znajdują się trzy ładne sypialnie i wspólna duża łazienka. Sypialnia rodziców ma oddzielną garderobę. Dom, choć o niewielkiej powierzchni, mieści w sobie wszystkie funkcje potrzebne do komfortowego życia dla pełnej rodziny. Nieskomplikowana bryła i prosta konstrukcja pozwolą na rozsądną kosztowo budowę, a ze względu na zastosowane dobre izolacje i energooszczędne instalacje koszty późniejszego utrzymania również nie będą wysokie. „Odwrócony” dobra propozycja dla inwestorów mających „odwrotną” działkę, z wjazdem od południa, chcących zbudować nieduży nowoczesny dom z poddaszem użytkowym. Zapraszamy !
