- Tylko online
Masz pytania? Chciałbyś negocjować cenę
Zadzwoń! 577 575 011
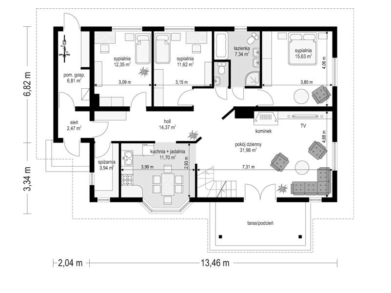
Projekt domu D05 to budynek parterowy dla rodziny 4- 5-osobowej, zaprojektowany na trudną działkę z drogą dojazdową od strony południowej. W projekcie domu D05 istnieje możliwość zagospodarowania strychu. Na parterze budynku znajduje się pokój dzienny, częściowo połączony z holem i kuchnią z wyjściem na taras z podcieniem. Duża kuchnia z aneksem jadalnym otwiera się na przestrzeń przed domem przez przeszklony wykusz. Kotłownia dostępna jest z przedsionka i posiada osobne wyjście na zewnątrz. Pomieszczenie gospodarcze przy kuchni może służyć za pralnię lub spiżarnię. Pracownia posiada projekt D05 w odbiciu lustrzanym.
