- Tylko online
Masz pytania? Chciałbyś negocjować cenę
Zadzwoń! 577 575 011
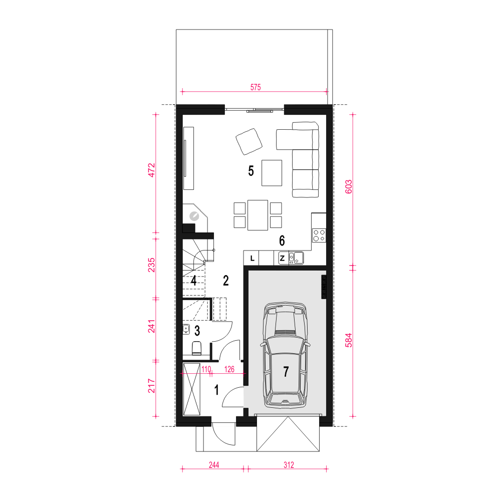
Projekt domu Jukka do atrakcyjny dom parterowy z poddaszem użytkowym w zabudowie szeregowej. To idealny projekt na wąskie działki o bardzo prostej i zwartej formie oraz o niedużej powierzchni użytkowej - blisko 100 m2 - co przekłada się na niski koszt budowy i eksploatacji domu. Projekt Jukka to dom dla 4-5cio osobowej rodziny z wbudowanym garażem, o tradycyjnej konstrukcji ścian z pustaków ceramicznych izolowanych styropianem. Dach dwuspadowy zaprojektowano jako podniesiony na ściankach kolankowych o wysokości 1,14 m. Funkcja domu obejmuje część ogólnodostępną na parterze i prywatną na poddaszu. Na parterze zaprojektowano część wejściową z wiatrołapem, holem, WC i schodami schodami prowadzącymi na poddasze. Dalej mamy przewidziany ustawny salon z kominkiem i jadalnią, oraz wygodny aneks kuchenny. Z salonu dostaniemy się na przydomowy ogród. Na poddasz zlokalizowana na poddaszu, obejmuje przedpokój z którego dostaniemy się do trzech sypialni, wspólnej łazienki oraz pomieszczenia pralni z piecem gazowym c.o. Jukka szeregówka, to projekt domu o parametrach energooszczędnych, o prostej konstrukcji i zwartej formie. To idealny projekt do realizacji inwestycji deweloperskich.
