- Tylko online
Masz pytania? Chciałbyś negocjować cenę
Zadzwoń! 577 575 011
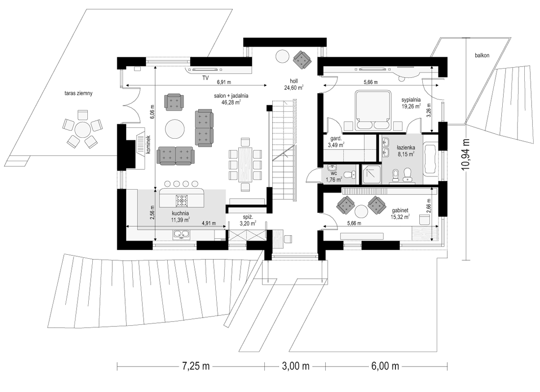
Projekt domu Dom Na Górce to bardzo funkcjonalny dom o zwartej bryle, nowoczesnym wyrazie i prostej formie. Bryła budynku została wkomponowana w skarpę na działce - naturalną lub sztuczną. Ukryto dzięki temu obszerną piwnicę z garażem i wiatą. Dzięki zaprojektowanej wiacie garażowej, która wycina narożnik domu u jego podstawy, bryła stała się bardziej dynamiczna. Wnętrze domu rozwiązano w autorski sposób, wprowadzając wiele oryginalnych rozwiązań, przez co dom będzie sprawiał wrażenie niepowtarzalności. Projekt domu Dom na Górce wyróżnia się przede wszystkim dużą frontową taflą szkła, łączącego holl na parterze z holem i przedsionkiem wejściowym w przyziemiu - piwnicy. Schody - o jasnym prostym układzie są widoczne również od zewnątrz domu. Cechą charakterystyczną projektu Dom Na Górce jest centralne ustawienie holu i schodów oraz wyraźne oddzielenie funkcji dziennej, nocnej i technicznej domu. Jednoprzestrzenna bardzo wygodna w użytkowaniu część dzienna. Wiele szaf, schowków, pomieszczeń pomocniczych - jak spiżarnia, pralnia. Duży wygodny garaż, oraz wiata na dodatkowe auta, do tego bardzo wyraźne podziały w ścian na puste i przeszklone powierzchnie - wszystko to tworzy niepowtarzalny wygląd. Pracownia posiada odbicie lustrzane projektu domu Dom Na Górce.
