- Tylko online
Masz pytania? Chciałbyś negocjować cenę
Zadzwoń! 577 575 011
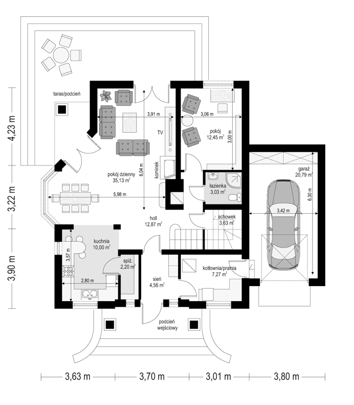
Projekt domu Dom na Medal 2 to pojedyncza wersja projektu domu Dom na Medal, z dachem nad częścią garażową zakończonym naczółkiem. Projekt doskonale nadaje się na mieszkanie dla 4- 5-osobowej rodziny. Można go posadowić nawet na dość wąskiej działce. Jednoprzestrzenne wnętrze salonu z jadalnią i holem oraz dodatkowy pokój z łazienką na parterze, oraz trzy wygodne sypialnie na poddaszu (z minimalnymi skosami), tworzą wygodne miejsce do życia. Dodatkowo we wnętrze wkomponowano kilka pomieszczeń pomocniczych - garderób i schowków. Poddasze nad garażem może pełnić rolę strychu lub pomieszczenia mieszkalnego. Pracownia posiada również projekt domu Dom na Medal 2 w odbiciu lustrzanym. Zapraszamy do zapoznania się z pełną ofertą pracowni MG Projekt: Dom na Medal - bliźniak.
