Informujemy, iż nasz sklep internetowy wykorzystuje technologię plików cookies a jednocześnie nie zbiera w sposób automatyczny żadnych informacji, z wyjątkiem informacji zawartych w tych plikach (tzw. „ciasteczkach”).

jurkowo średnie

  • Tylko online

Dane techniczne

powierzchnia
126.01 m²
wysokość
8.55 m
kąt dachu
45 °
szerokość działki
20 m
Liczba pokoi
6
Powierzchnia zabudowy
102.7
kondygnacje
z poddaszem użytkowym
garaż
bez garażu
dach
dach dwuspadowy
konstrukcja
murowane
zabudowa
domy wolnostojące
piwnica
bez piwnicy
kubatura
519.81 m³
dostępne odbicie lustrzane
Nie
Pow. użytkowa
126.01 m²
długość działki
17.35 m
Liczba łazienek
1
Pow. netto
156.63
Powierzchnia dachu
192.19 m²

Opis projektu

Piękny, zaprojektowany z dbałością o proporcje i estetykę dom przeznaczony dla 4-5 osobowej rodziny. Na parterze obszerna strefa dzienna składająca się z otwartej kuchni oraz salonu. W salonie kominek oraz schody prowadzące na poddasze. Dodatkowo na parterze zaprojektowano pokój-bibliotekę. Na poddaszu znajdują się cztery sypialnie oraz wygodna łazienka.

Rzuty

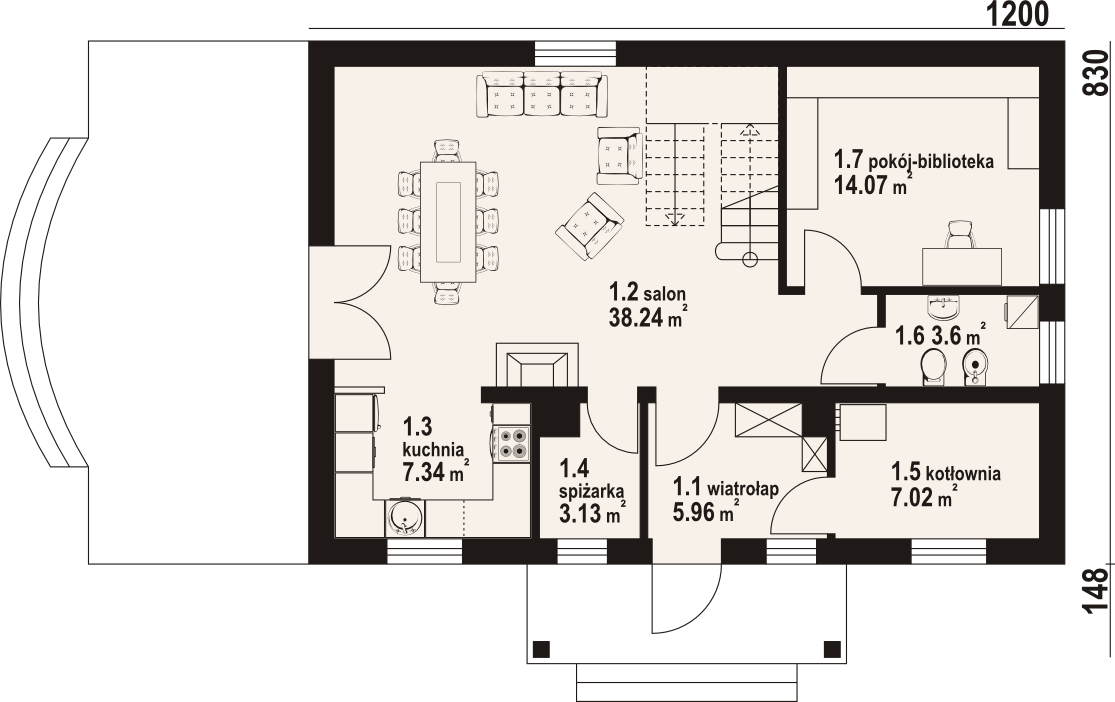
rzut parteru
1.1 wiatrołap
5.96
1.2 salon
38.24
1.3 kuchnia
7.34
1.4 spiżarka
3.13
1.5 kotłownia
7.02
1.6 wc
3.6
1.7 pokój-biblioteka
14.07
rzut poddasza
2.1 komunikacja
4.64
2.2 pokój
10.5
2.3 pokój
10.33
2.4 łazienka
7.5
2.5 pokój
11.01
2.6 pokój
12.67

Elewacje

Sytuacja

Przekrój

O autorze projektu jurkowo średnie

5 099 zł

Tylko u nas możesz negocjować cenę!
Skorzystaj z tej możliwości.

Lustrzane odbicie: niedostępne.

Masz dodatkowe pytania?
Zadzwoń lub zamów rozmowę.

Zamów rozmowę

Pomożemy Ci dopasować do twoich potrzeb mymarzony projekt, wpisz swój numer telefonu nasz konsultant oddzwoni.

Negocjuj cenę projektu jurkowo średnie

Zapytaj pytanie o projekt jurkowo średnie

Oceny i komentarze

Napisz swoją opinię