- Tylko online
Masz pytania? Chciałbyś negocjować cenę
Zadzwoń! 577 575 011
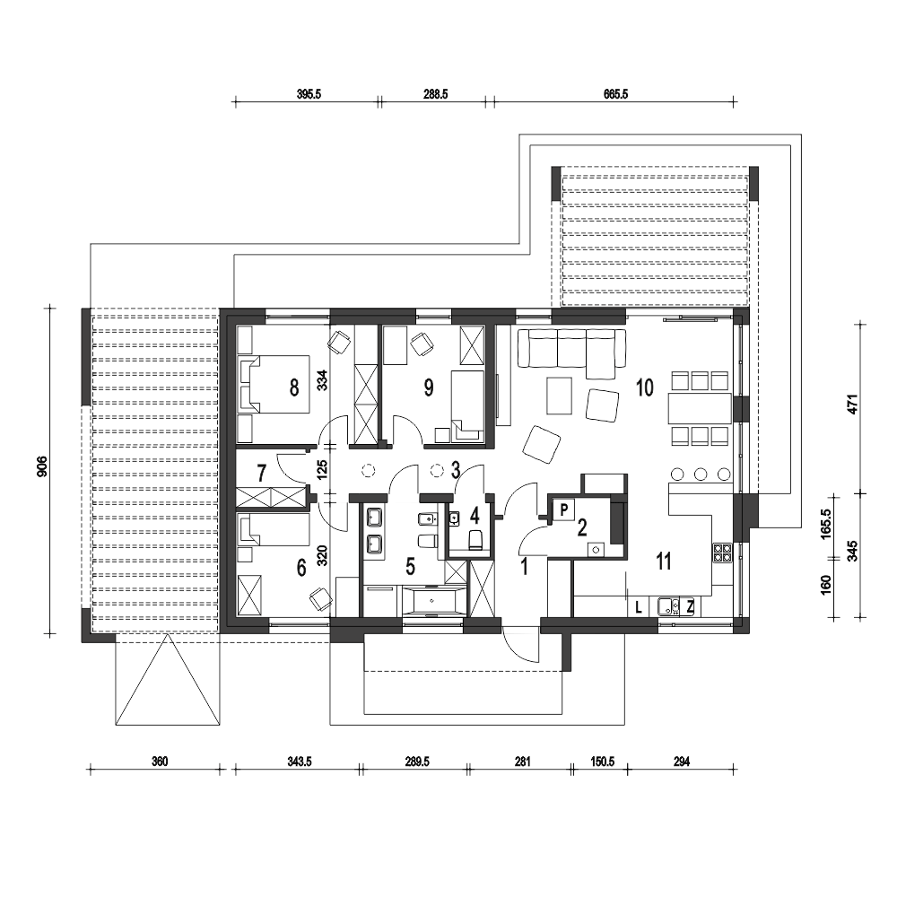
Projekt domu Kalikst z przybudowaną wiatą to nowoczesny dom dla 4-5cio osobowej rodziny. Dom ten zaprojektowano w technologii murowanej z prefabrykowaną więźbą dachową. Kalikst to funkcjonalny projekt domu łączący dwie strefy: ogólnodostępną i prywatną na jednej kondygnacji. W części wejściowej zaprojektowano wiatrołap z wnękową szafą, pralnię oraz osobną toaletę. W części ogólnodostępnej mamy duży salon z miejscem na wygodny, sześcioosobowy stół jadalniany. Dzięki wygodnym przesuwnym drzwiom tarasowym, dostaniemy się z salonu na zewnątrz, na taras z pergolą. Charakterystycznymi elementami salonu, jest duży nowoczesny kominek, usytuowany przy kuchni oraz duże przeszklenia. Kuchnia z meblami w kształcie litery "u" i z dodatkową przestrzenią na spiżarnię, zapewnia komfortową przestrzeń do pracy. Narożne okna kuchenne gwarantują odpowiednią ilość światła zewnętrznego. Część prywatna dostępna jest z niedużego korytarza, doświetlonego dwoma świetlikami rurowymi umiejscowionymi w suficie. W tej strefie mamy zaprojektowane trzy pokoje sypialne, wspólną wygodną łazienkę z wanną i prysznicem oraz garderobę. Kalikst to atrakcyjna propozycja domu energooszczędnego, o nowoczesnej architekturze i charakterystycznej elewacji, w nowoczesnych odcieniach szarości i czerni, skontrastowanych ciepłym kolorem okładziny drewnopodobnej. Kalikst w wariancie z wiatą, to projekt domu z serii "eco" - ekonomiczny w budowie i w utrzymaniu.
