- Tylko online
Masz pytania? Chciałbyś negocjować cenę
Zadzwoń! 577 575 011
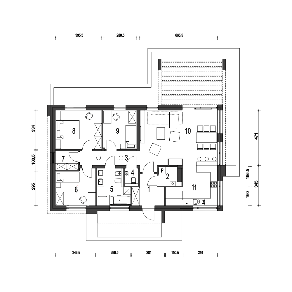
Projekt domu Kalikst bez garażu to nowoczesny dom dla 4-5cio osobowej rodziny. Budynek zaprojektowano w technologii murowanej z prefabrykowaną więźbą dachową. Kalikst to funkcjonalny projekt domu łączący strefę ogólnodostępną i prywatną na jednej kondygnacji. W części wejściowej mamy zaprojektowany wiatrołap (z wnękową szafą), pralnię oraz osobną toaletę. W części ogólnodostępnej mamy duży salon z miejscem na wygodny, sześcioosobowy stół jadalniany. Dzięki dużym przesuwnym drzwiom tarasowym, dostaniemy się z salonu na zewnątrz, na taras z pergolą. Charakterystycznym elementem salonu, jest duży nowoczesny kominek, usytuowany przy kuchni. Kuchnia z meblami usytuowanymi w kształcie litery "u" i z przestrzenią na osobną spiżarnię, zapewnia komfortową przestrzeń do pracy. Narożne okna kuchenne gwarantują odpowiednią ilość światła zewnętrznego. Część prywatna dostępna jest z niedużego korytarza, który doświetlony jest dwoma świetlikami rurowymi umiejscowionymi w suficie. W tej strefie mamy zaprojektowane trzy pokoje sypialne, wspólną wygodną łazienkę z wanna i prysznicem oraz garderobę. Kalikst to atrakcyjna propozycja domu energooszczędnego, o nowoczesnej architekturze i charakterystycznej elewacji, w nowoczesnych odcieniach szarości i czerni, skontrastowanych ciepłym kolorem okładziny drewnopodobnej. Kalikst w wariancie bez garażu, to projekt domu z serii "eco" - ekonomiczny w budowie i w utrzymaniu.
jak zwykle dobre połączenie koloru szarości z raczej jasniejszym drewnem. Drewno dodaj enowoczesności, pewnie się powtarzam i wielu już o tym pisało, ale super pomysł. Myslimy czy nie zmienić u nas w domu elewacji i nie dodac czegoś takiego jak w domu projekcie Kalikst B. pozdrawiam serdecznie czytelników Archido!

jak zwykle dobre połączenie koloru szarości z raczej jasniejszym drewnem. Drewno dodaj enowoczesności, pewnie się powtarzam i wielu już o tym pisało, ale super pomysł. Myslimy czy nie zmienić u nas w domu elewacji i nie dodac czegoś takiego jak w domu projekcie Kalikst B. pozdrawiam serdecznie czytelników Archido!