- Tylko online
Masz pytania? Chciałbyś negocjować cenę
Zadzwoń! 577 575 011
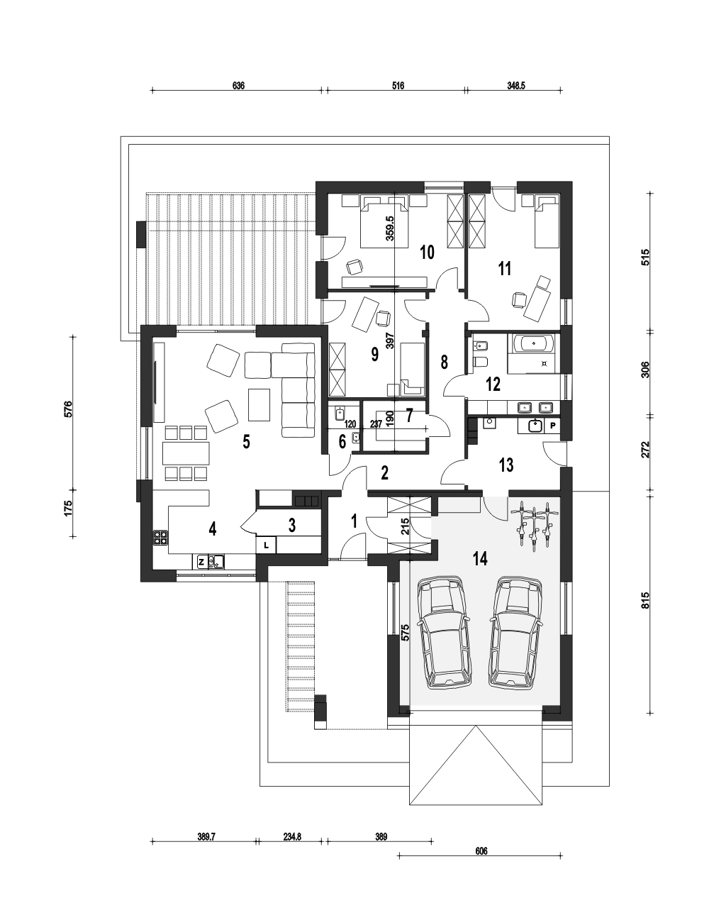
Projekt domu Kasjan, to nowoczesny parterowy dom jednorodzinny z przybudowanym garażem dwustanowiskowym. Dom zaprojektowany jest z dbałością o szczegóły, zwłaszcza w odniesieniu do elewacji o wyraźnie indywidualnym, nowoczesnym charakterze. Dom zaprojektowano w technologii tradycyjnej, murowanej z pustaków ceramicznych ocieplanych styropianem, z tradycyjną więźba dachową zaprojektowaną na monolotycznym stropie żelbetowym. Projekt przewiduje strefę ogólnodostępną z salonem i efektoenym kominkiem, kuchnią wraz ze spiżarnią oraz toaletą. W strefie prywatnej mamy do dyspozycji 3 wygodne sypialnie, komfortową łazienkę i garderobę. W części gospodarczej przewidziano dużą kotłownię z pralnią i dwustanowiskowy garaż z miejscem do przechowania rowerów. Projekt domu Kasjan to propozycja nowoczesnego, komfortowego, a przy tym i energooszczędnego domu parterowego.fundamenty: BETONOWE ściany zewnętrzne: POROTHERM+STYROPIAN TERMO ORGANIKA rodzaj stropu: MONOLITYCZNY ŻELBETOWY elewacje: TYNK STRUKTURALNY, OKŁADZINA HPL pokrycie dachu: DACHÓWKA CEM. lub CER.
