- Tylko online
Masz pytania? Chciałbyś negocjować cenę
Zadzwoń! 577 575 011
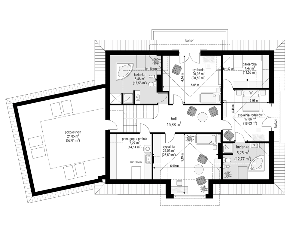
Projekt domu Dom z Kolumnami to budynek stworzony na bazie domu Benedykt. Dostojny, parterowy dom z poddaszem użytkowym, wielospadowymi dachami i szerokimi lukarnami. Dobudowana do głównej bryły budynku część garażowa została zaprojektowana pod kątem tak, aby stworzyć wrażenie dziedzińca frontowego z wejściem do domu i wjazdem do garażu skierowanymi do jednego centralnego punktu. W Domu z Kolumnami, prócz mieszkania dla 4- 5-osobowej rodziny zaprojektowano również dodatkowo pokój z aneksem kuchennym i łazienką dla starszej osoby. Projekt domu Dom Z Kolumnami zatem może służyć jako siedziba trzypokoleniowej rodziny. Na parterze zaplanowano duży salon połączony z jadalnią i holem, oraz z częściowo otwartą kuchnią. Z salonu możemy podziwiać ogród przez dwa duże przeszklenia w wykuszach. Możemy również wyjść na taras i podcień. Na parterze zaplanowano dodatkowo gabinet blisko wejścia. Pomieszczenia techniczne umieszczono w części garażowej. Na poddaszu zaprojektowano trzy sypialnie i dwie łazienki. Jedna sypialnia stanowi odrębny apartament rodziców z garderobą i łazienką. Dodatkowo w Domu z Kolumnami przewidziano pralnio-suszarnię (mogącą być również dodatkowym pokojem), oraz strych nad garażem, który można przewidzieć na pokój sportowy lub np. kino domowe.
