- Tylko online
Masz pytania? Chciałbyś negocjować cenę
Zadzwoń! 577 575 011
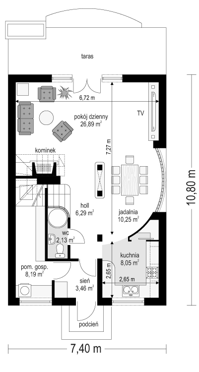
Projekt domu Dom z Piętrem to piętrowy budynek dla rodziny czteroosobowej o prostej bryle i bezpretensjonalnej architekturze. Pasujący na wąską działkę, szczególnie wśród istniejącej ścisłej zabudowy. Na parterze zaprojektowano dużą otwartą przestrzeń dzienną oraz pomieszczenia techniczne. Na piętrze mieszczą się trzy wygodne sypialnie - bez skosów - oraz łazienka i garderoba. Dostępne jest również odbicie lustrzane projektu domu Dom z Piętrem.

Niby mały i prosty ale fajnie, że pomyśloano żeby dodać wykusz. Wielofunkcyjny pokój dzienny z jadalnią to jest to! super Archido