- Tylko online
Masz pytania? Chciałbyś negocjować cenę
Zadzwoń! 577 575 011
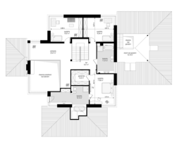
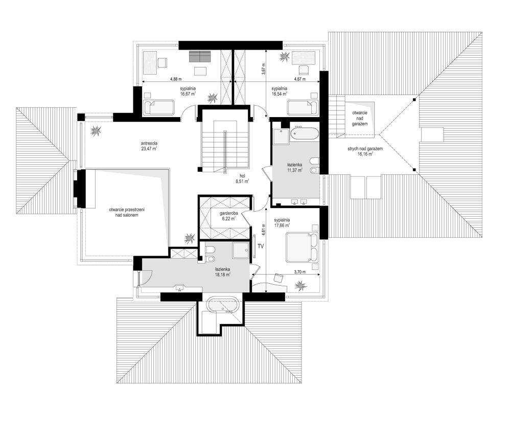
Projekt domu Dom z widokiem jest luksusową, nowoczesną willą jednorodzinną, przeznaczoną dla 4-6 domowników. Projekt domu Dom z Widokiem nadaje się do budowy nawet na działce z niekorzystnym usytuowaniem w stosunku do stron świata. Dom z Widokiem zaprojektowany został jako rozłożysta piętrowa rezydencja, połączona z otaczającym ogrodem licznymi przeszkleniami, oraz otwartymi i zadaszonymi tarasami. Bryła Domu z Widokiem Bryła Domu z Widokiem składa się z zasadniczej części piętrowej i trzech parterowych skrzydeł, tworzących w całości układ litery "T". Projekt Dom z Widokiem jest na tyle uniwersalny, że może być postawiony na każdej działce. Część wejściowo-wjazdowa i część tarasowa od strony salonu tworzą dwa osobne półotwarte dziedzińce: frontowy i ogrodowy. Duże narożne okna z rzadkimi podziałami stanowią wizytówkę Domu z Widokiem. Elewację urozmaicają liczne detale, okładziny z piaskowca, boniowania tynku i drewniane wykończenia. Całość przykryta jest łagodnym dachem z szerokimi okapami. Projekt Dom z Widokiem ma nowoczesną, ale stonowaną architekturę. Emanuje z niej spokój i elegancja. Dzięki połączeniu dobrych sprawdzonych detali architektura Domu z Widokiem nigdy się nie zestarzeje i nie wyjdzie z mody. Jednymi z głównych atrakcji Domu z Widokiem są jego duże przeszklenia, a największą atrakcją jest dwukondygnacyjny szklany narożnik salonu, łączący pokój dzienny z pustką z tarasem i ogrodem. Pozostałe przeszklenia: w jadalni, w kuchni, sypialniach, czy przy wejściu do domku, dodatkowo potęgują efekt otwartości wnętrza. Dom z Widokiem wnętrze Przestrzeń jest luksusem i wnętrze Domu z Widokiem zaprojektowano kierując się tą właśnie myślą. Parter budynku mieszkalnego to w dużej mierze otwarta duża część dzienna - salon, jadalnia, hol, kuchnia. Na parterze zmieściliśmy dodatkowy pokój - gabinet lub sypialnię gościnną. Piętro to sypialnie rodziców i dzieci z łazienkami i garderobami. Na piętrze mieści się duża antresola nad salonem, którą można wykorzystać jako dodatkowy pokój. Funkcjonalnie zaprojektowane wnętrze Domu z Widokiem zapewnia wygodne mieszkanie wszystkim domownikom. Projekt domu Dom z widokiem to dom dla osób wyjątkowych, z wizją, z pragnieniem życia w nietuzinkowym otoczeniu, wśród pięknych wnętrz. Dom z Widokiem jest energooszczędny, więc będzie tani w użytkowaniu. Projekt domu Dom z Widokiem dostępny jest w odbiciu lustrzanym, kilku wariantach oraz w innych wersjach domu z widokiem: Dom z Widokiem 2, Dom z Widokiem 2C, Dom z Widokiem 3, Dom z Widokiem 3F, Dom z Widokiem 4, Dom z Widokiem 5, Dom z Widokiem 6, Dom z Widokiem 6B, Dom z Widokiem B, Dom z Widokiem E.
Parterowy dom w zupelności wystarczy naszej rodzinie, poza tym takie domy nam się podobają :) Na archido znaleźliśmy kilka ładnych projektów, ale ostatecznie wybór padł wlaśnie na Klejnot z garażem. Możemy z czystym sumieniem polecić, jeśtli komuś nie zalezy na rezydencji :)
Jednak garaz w dzisiejszych czasach to jest podstawa, każdy albo prawie każdy ma samochód, przecież ciężko jest się przemieszczać, zwłaszcza zima jak ktoś mieszka nie w mieście. A taki mały dobudowany do domu raczej nie będzie drogi a na pewno się przyda każdemu. Świetnie, że na Archido są takie projekty i że któras pracownia o tym pomyślała. Brawo! :)

Szkoda, że taras nie jest większy, bo pozostałe elementy projektu są wporządku. Ogólnie potrzebujemy raczej czegoś prostego, niedużego, ale garaż był istotny. Na pewno rozważymy tę opcję od Archido.