- Tylko online
Masz pytania? Chciałbyś negocjować cenę
Zadzwoń! 577 575 011
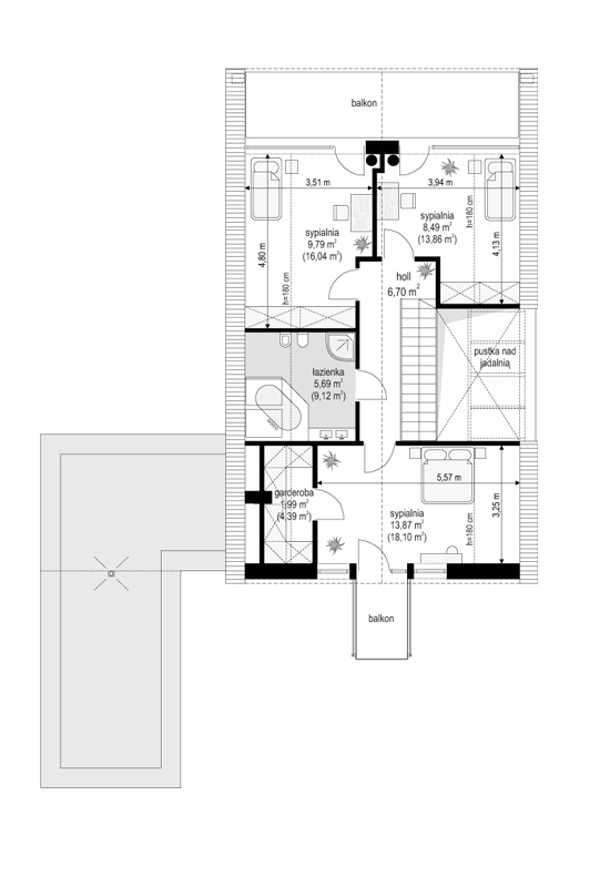
Projekt domu Domino to wyjątkowy dom jednorodzinny, o ciekawej, nietuzinkowej architekturze. Zarówno jego forma architektoniczna, układ brył, detale wykończeniowe i zastosowane materiały - czynią z niego budynek oryginalny i niepowtarzalny. Nowoczesna stylistyka idzie tutaj w parze z funkcjonalnością, oraz z energooszczędnością budynku. Głównym założeniem projektu było uzyskanie prostej bryły przykrytej dwuspadowym dachem z minimalnymi okapami i zaplanowanie wnętrz domu na osi wzdłuż kalenicy - od wejścia, do ściany ogrodowej salonu, z dużymi przeszkleniami i centralnie umieszczonym kominkiem. Frontowy „balkon-mostek”, będący jednocześnie zadaszeniem nad wejściem, oraz wyciągnięty dach nad tarasem od strony ogrodu, powiększają efekt wizualny wydłużenia budynku. Uzupełnienie i przełamanie kompozycji stanowi dobudowana z boku parterowa bryła z płaskim dachem, kryjąca wiatę garażową i dodatkowy pokój. Wnętrze domu zaplanowano w taki sposób, aby maksymalnie uatrakcyjnić przestrzeń dzienną. Mamy tutaj: jednobiegowe nowoczesne schody połączone z pustką nad jadalnią, jadalnię z pięknym przeszkleniami i świetlikiem w dachu, salon z dużymi przeszkleniami na zadaszony taras i ogród, oraz centralnie ustawionym kominkiem, holl i częściowo otwartą kuchnię. Na parterze mamy aż dwa dodatkowe pokoje, łazienkę i kotłownię. Na poddaszu z kolei przewidziano trzy sypialnie, łazienkę i garderobę rodziców. Zarówno wnętrze jak i wygląd zewnętrzny domu zaprojektowano z myślą o Inwestorach lubiących ciekawe, nietuzinkowe rozwiązania i nowoczesną architekturę. Dom jest przy tym łatwy w budowie, ma prostą konstrukcję. Projekt domu Domino dzięki swojej prostocie i zwartości, oraz świetnym izolacjom jest też energooszczędny i będzie niedrogi w utrzymaniu (można go łatwo dostosować do standardu NF40). Zapraszamy !
Niezła rezydencja, w dodatku bliźniak. Teraz to już w ogóle wygląda okazale. Garaże, balkony, tarasy, kominki, rozmaitości : - ) Bardzo podoba mi się wnętrze chociaż sama nie szukam domu typu bliźniak tylko raczej czegoś jednorodzinnego. Ale dla kogoś kto potrzebuje mieć rodzinkę za ścianą to swietna sprawa.
W sumie to ja czegoś takiego szukam, własnie bliźniaka !!!! faktycznie wygląda okazale, masz rację i dużo ma dodatków ten dom. ciekawe jaka jest cena budowy pod klucz takiego domu. Ktoś ??? coś ??? Bo nie wiem czy mógłbym sobie na taki wypas pozwolić ;)

Wydaje się bardzo duży, ale to przecież dom typu bliźniak, wiec wiadomo, ze bedzienieco większy. Komorów ogólnie zaliczam do tych fajniejszych, pzykuwajacych wzrok projektów gotowych, gdybyśmy potrzebowali bliźniaka pewnie zastanowilibyśmy się właśnie nad takim domem. Pozdrawiam Archido