Informujemy, iż nasz sklep internetowy wykorzystuje technologię plików cookies a jednocześnie nie zbiera w sposób automatyczny żadnych informacji, z wyjątkiem informacji zawartych w tych plikach (tzw. „ciasteczkach”).

Eko

  • Tylko online

Dane techniczne

powierzchnia
193.82 m²
wysokość
8.09 m
kąt dachu
40 °
szerokość działki
31.06 m
Liczba pokoi
6
Powierzchnia zabudowy
191.25
kondygnacje
parterowe
garaż
z garażem 2 st.
dach
dach wielospadowy
konstrukcja
murowane
zabudowa
domy wolnostojące
piwnica
bez piwnicy
kubatura
887 m³
dostępne odbicie lustrzane
Nie
Pow. użytkowa
193.82 m²
długość działki
18.91 m
Liczba łazienek
3
Pow. netto
193.82
Powierzchnia dachu
216.12 m²

Opis projektu

Projekt domu Eko to dom przewidziany dla rodziny 4- 5-osobowej. Odnajdą się w nim ludzie oczekujący od swojego domu oryginalności, jednocześnie z zachowaniem dobrego smaku. Projekt domu Eko wykorzystuje język nowoczesnych detali takich jak duże przeszklenia, otwarcia przestrzenne, prostopadłościenne wykusze, czy taras na dachu garażu. Dom zaprojektowano z myślą o maksymalnym otwarciu na ogród. Dodatkową atrakcją jest taras nad garażem na poddaszu.

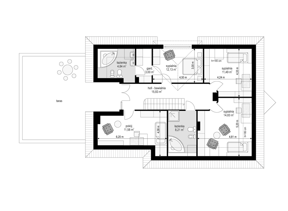
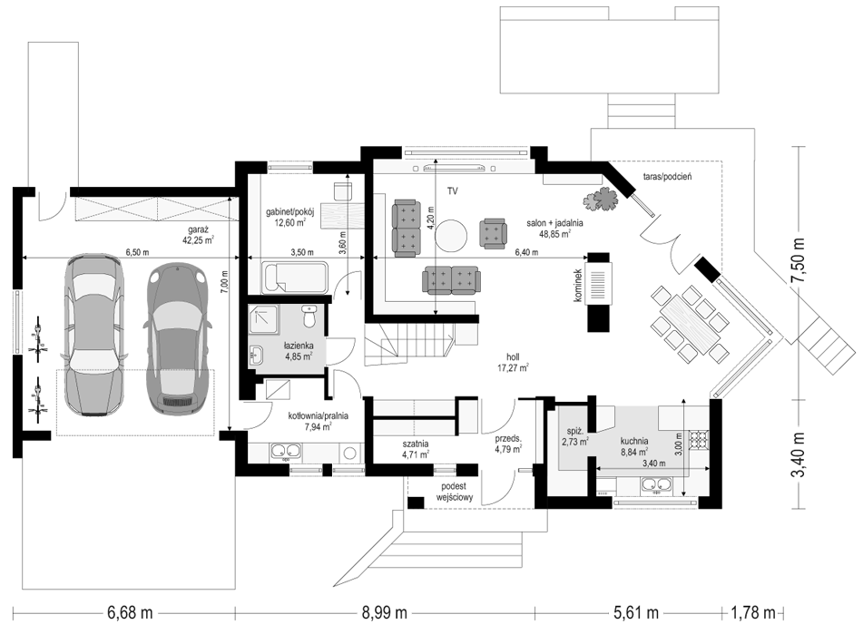
Rzuty

Kondygnacja 1
Kondygnacja 3

Elewacje

Sytuacja

O autorze projektu Eko

6 090 zł

Tylko u nas możesz negocjować cenę!
Skorzystaj z tej możliwości.

Lustrzane odbicie: niedostępne.

Masz dodatkowe pytania?
Zadzwoń lub zamów rozmowę.

Zamów rozmowę

Pomożemy Ci dopasować do twoich potrzeb mymarzony projekt, wpisz swój numer telefonu nasz konsultant oddzwoni.

Negocjuj cenę projektu Eko

Zapytaj pytanie o projekt Eko

Oceny i komentarze

Napisz swoją opinię