- Tylko online
Masz pytania? Chciałbyś negocjować cenę
Zadzwoń! 577 575 011
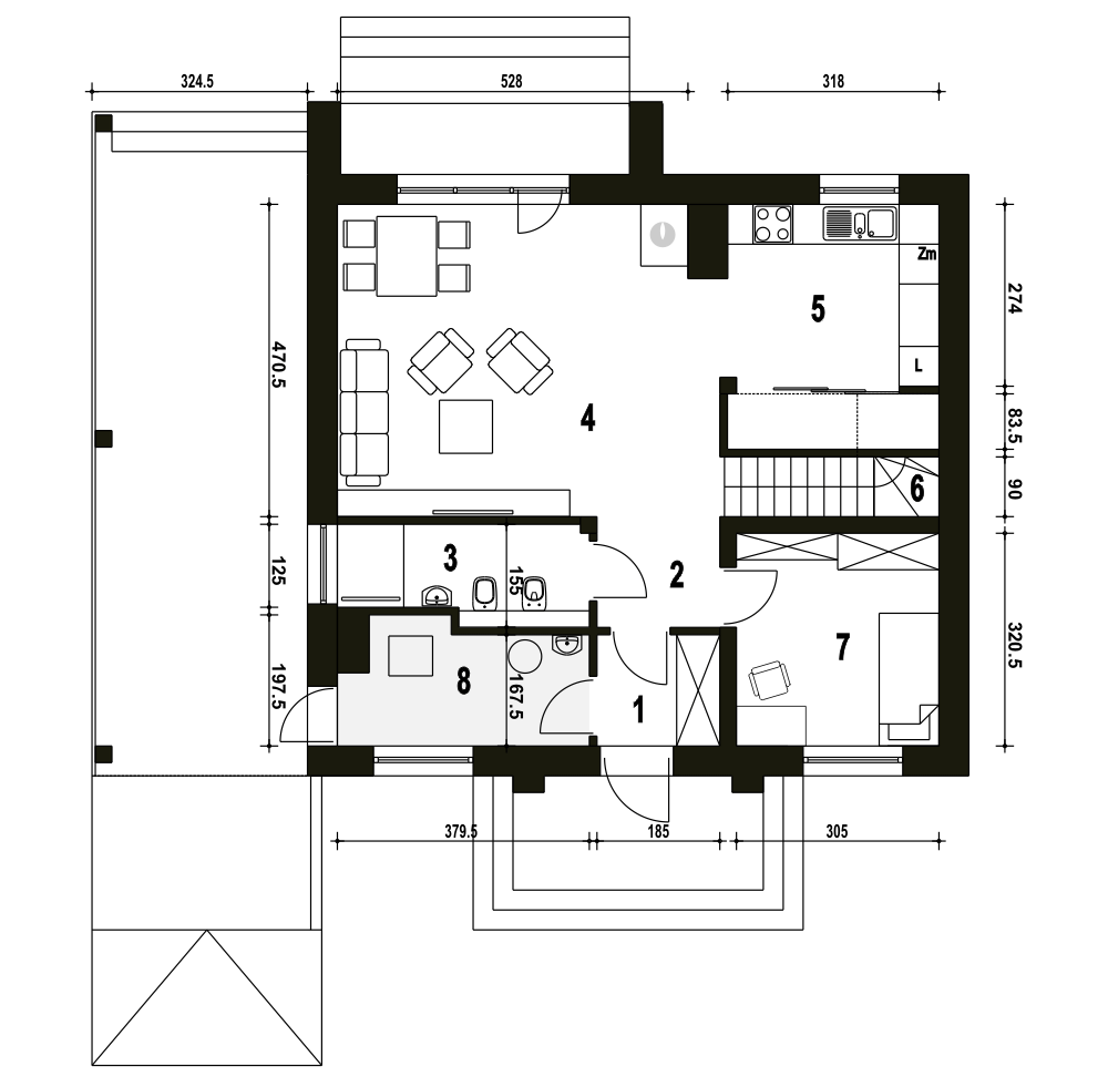
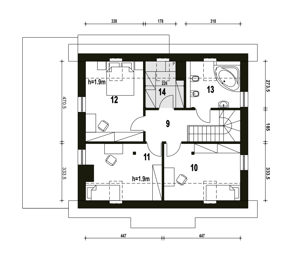
Projekt gotowy Lerka to dom stanowiący doskonały melanż tradycji i nowoczesności. Dom charakteryzuje się prostą formą i nieskomplikowaną funkcją użytkową. Minimalizm i ład w elewacjach budynku wpływa na obniżenie kosztów budowy. Ze względu na ekonomię zrezygnowano z balkonów i lukarn, w zamian zastosowano nowoczesne okna typu porfenetr zapewniające doskonałe doświetlenie pomieszczeń. Parter stanowiący dzienną strefę domu zawiera hol, łazienkę, salon z kuchnią i spiżarnią a także dodatkowy pokój z przeznaczeniem na gabinet lub pokój gościnny. Piętro czyli strefa nocna to 3 wygodne sypialnie oraz łazienka a także garderoba z pralnią.fundamenty: BETONOWE ściany: POROTHERM+STYROPIAN TERMO ORGANIKA rodzaj stropu: TERIVA I elewacje: TYNK STRUKTURALNY pokrycie dachu: DACHÓWKA CEM. lub CER.
