- Tylko online
Masz pytania? Chciałbyś negocjować cenę
Zadzwoń! 577 575 011
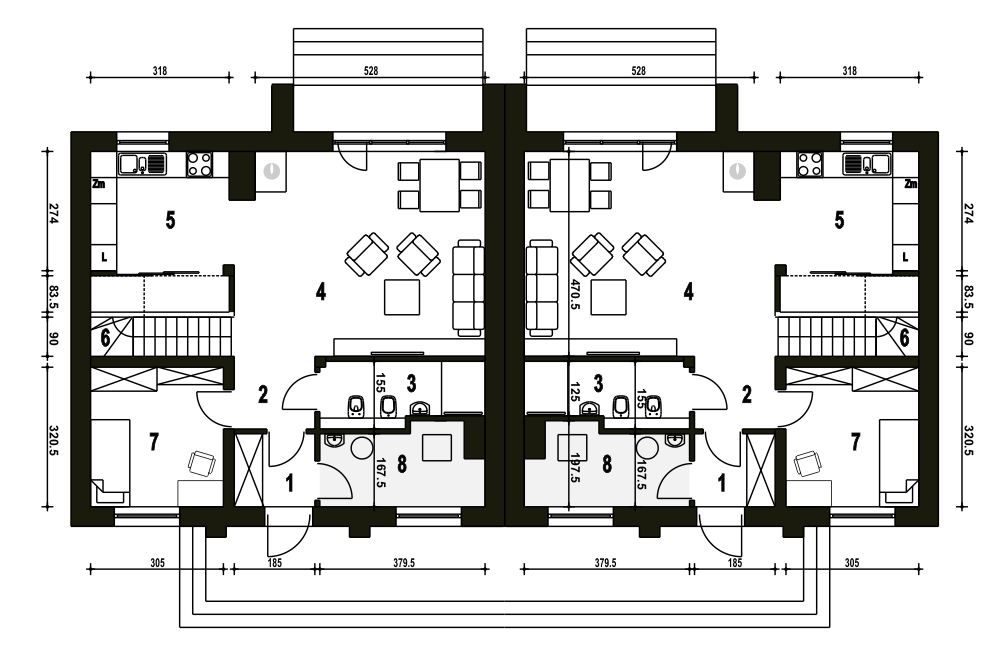
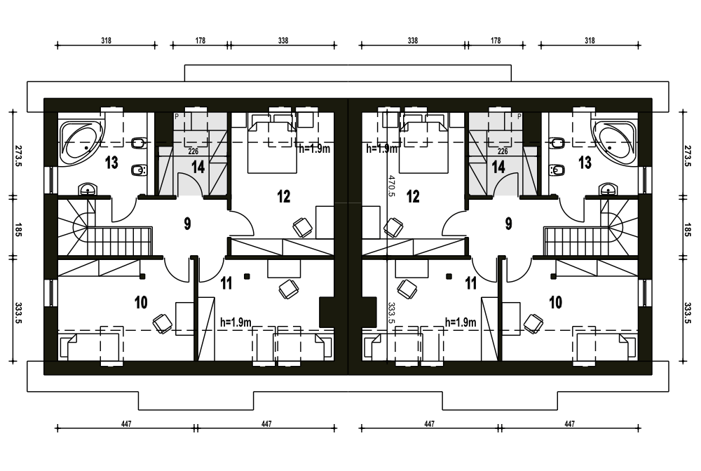
(Uwaga: projekty typu bliźniak oferujemy jako domy dwulokalowe, projekt można zamówić również w zabudowie bliźniaczej) Lerka B-BL1 powstał z dwóch segmentów połączonych ścianami szczytowymi od strony kotłowni. Opis dotyczy jednego segmentu. Projekt gotowy Lerka to dom stanowiący doskonały melanż tradycji i nowoczesności. Dom charakteryzuje się prostą formą i nieskomplikowaną funkcją użytkową. Minimalizm i ład w elewacjach budynku wpływa na obniżenie kosztów budowy. Ze względu na ekonomię zrezygnowano z balkonów i lukarn, w zamian zastosowano nowoczesne okna typu porfenetr zapewniające doskonałe doświetlenie pomieszczeń. Parter stanowiący dzienną strefę domu zawiera hol, łazienkę, salon z kuchnią i spiżarnią a także dodatkowy pokój z przeznaczeniem na gabinet lub pokój gościnny. Piętro czyli strefa nocna to 3 wygodne sypialnie oraz łazienka a także garderoba z pralnią.
