- Tylko online
Masz pytania? Chciałbyś negocjować cenę
Zadzwoń! 577 575 011
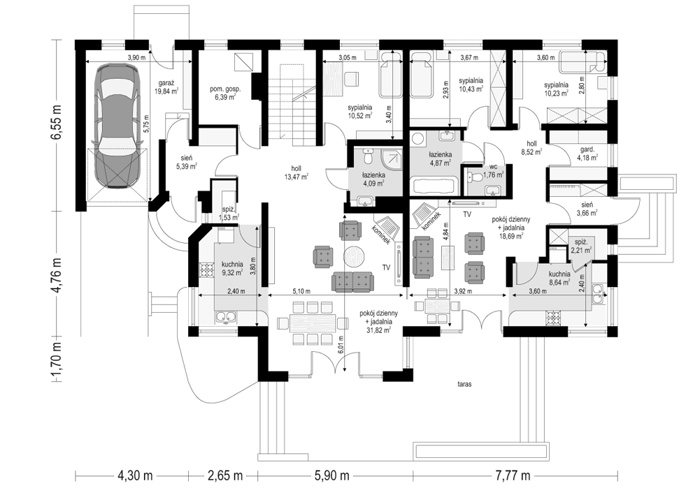
Projekt domu Familijny to propozycja willi dla trzypokoleniowej rodziny, z odrębnym mieszkaniem dla dziadków lub dziecka z własną rodziną. Dom Familijny ma rozłożystą bryłę, przekrytą niewysokim wielospadowym dachem. Układ pomieszczeń i wejścia do obu części domu zaprojektowano tak, aby dom pasował na działkę z niekorzystnym położeniem względem stron świata. Doskonale nadaje się na działkę gdzie planowany jest ogród od strony wejścia. Pracownia dysponuje również odbiciem lustrzanym projektu domu Familijny.
