Informujemy, iż nasz sklep internetowy wykorzystuje technologię plików cookies a jednocześnie nie zbiera w sposób automatyczny żadnych informacji, z wyjątkiem informacji zawartych w tych plikach (tzw. „ciasteczkach”).

LIZBONA

  • Tylko online

Dane techniczne

powierzchnia
181.57 m²
wysokość
9 m
kąt dachu
40 °
szerokość działki
22.2 m
Liczba pokoi
22
Powierzchnia zabudowy
170.6
kondygnacje
parterowe
garaż
z garażem
konstrukcja
murowane
zabudowa
domy wolnostojące
piwnica
z piwnicą
kubatura
1359.5 m³
dostępne odbicie lustrzane
Nie
Pow. użytkowa
181.57 m²
długość działki
22.3 m

Opis projektu

Rzuty

Rzut parteru
04. kuchnia
10.8
05. aneks jadalny
12.75
06. pokój dzienny
27.33
07. pokój
10.45
08. łazienka
5.12
09. pom. gospodarcze
4.63
10. garaż
37.13
11. taras
14.6
01. wiatrołap
6.34
02. komunikacja
9.94
03. spiżarnia
2.54
Rzut poddasza
01. komunikacja
16.01
02. garderoba
6.88
03. pokój
17.46
04. pokój
17.93
05. pokój
20.59
06. garderoba
7.6
07. łazienka
9.83
08. pralnia / suszarnia
10.47
Rzut piwnicy
01. komunikacja
2.74
02. kotłownia
8.23
03. pom. gospodarcze
35.55
04. pom. gospodarcze
10.08

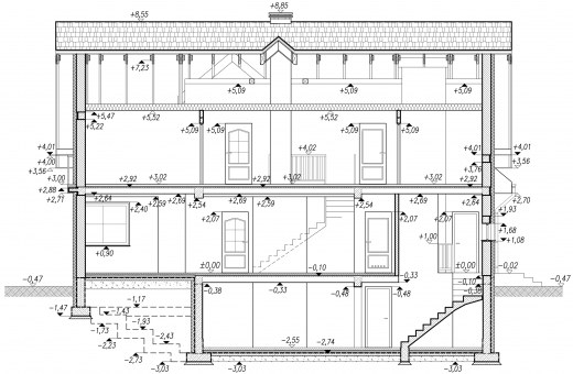
Przekrój

O autorze projektu LIZBONA

4 199 zł

Tylko u nas możesz negocjować cenę!
Skorzystaj z tej możliwości.

Lustrzane odbicie: niedostępne.

Masz dodatkowe pytania?
Zadzwoń lub zamów rozmowę.

Zamów rozmowę

Pomożemy Ci dopasować do twoich potrzeb mymarzony projekt, wpisz swój numer telefonu nasz konsultant oddzwoni.

Negocjuj cenę projektu LIZBONA

Zapytaj pytanie o projekt LIZBONA

Oceny i komentarze

Napisz swoją opinię