- Tylko online
Masz pytania? Chciałbyś negocjować cenę
Zadzwoń! 577 575 011
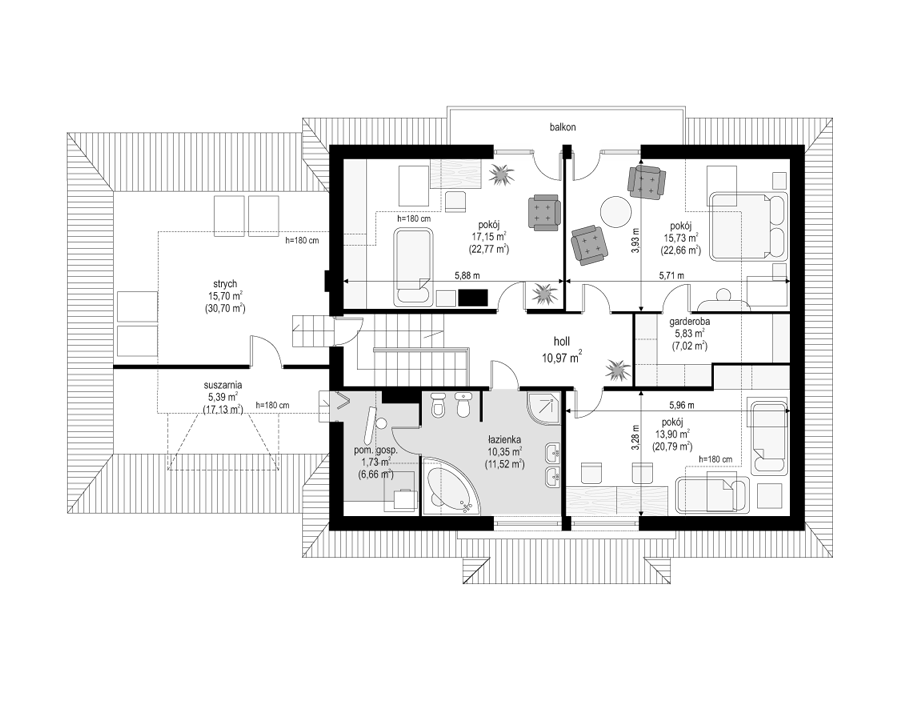
Projekt domu Faworyt 2 to druga wersja popularnego projektu Faworyt. Od wersji podstawowej projektu różni się powiększonym, podwójnym garażem. Projekt domu Faworyt 2 został stworzony z myślą o 4- 5-osobowej rodzinie. Na parterze oprócz przestronnego salonu połączonego z jadalnią i holem zaprojektowano dodatkowy pokój i pomieszczenie gospodarcze. Na poddaszu domu zaplanowano trzy ładne sypialnie i łazienkę z pralnią. Dzięki powiększeniu garażu do dwóch stanowisk, zwiększyło się też pomieszczenie gospodarcze za garażem i strych na poddaszu, który można zmienić np. w centrum domowej rozrywki. Pracownia posiada również projekt domu Faworyt 2 w odbiciu lustrzanym. oraz projekt domu Faworyt 3. Zapraszamy!
