Informujemy, iż nasz sklep internetowy wykorzystuje technologię plików cookies a jednocześnie nie zbiera w sposób automatyczny żadnych informacji, z wyjątkiem informacji zawartych w tych plikach (tzw. „ciasteczkach”).

Faworyt 3

  • Tylko online

Dane techniczne

powierzchnia
166.85 m²
wysokość
7.87 m
kąt dachu
34 °
szerokość działki
39.35 m
Liczba pokoi
6
Powierzchnia zabudowy
151.84
kondygnacje
parterowe
garaż
z garażem 1 st.
dach
dach wielospadowy
konstrukcja
murowane
zabudowa
domy bliźniacze
piwnica
bez piwnicy
kubatura
729 m³
dostępne odbicie lustrzane
Nie
Pow. użytkowa
166.85 m²
długość działki
19.12 m
Liczba łazienek
2
Pow. netto
203.92
Powierzchnia dachu
509 m²

Opis projektu

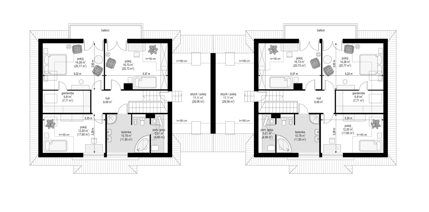
Projekt domu Faworyt 3 to trzecia odsłona popularnego projektu Faworyt, tym razem w postaci budynku bliźniaczego, dla dwóch rodzin. Dom mieści się na działce o szerokości 39,36 m. Na jedną połówkę potrzebna jest działka około 20 metrowa. Każda z połówek mieści na parterze salon z jadalnią, dodatkowy pokój, a na poddaszu trzy sypialnie. W projekcie domu Faworyt 3 wygospodarowano sporo miejsca na schowki, garderoby i szafy. Pracownia posiada projekt w odbiciu lustrzanym oraz projekt domu Faworyt 2. Zapraszamy!   UWAGA! Koszty realizacji oraz dane techniczne dotyczą połowy bliźniaka.

Rzuty

Kondygnacja 1
Kondygnacja 3

Elewacje

Sytuacja

O autorze projektu Faworyt 3

9 290 zł

Tylko u nas możesz negocjować cenę!
Skorzystaj z tej możliwości.

Lustrzane odbicie: niedostępne.

Masz dodatkowe pytania?
Zadzwoń lub zamów rozmowę.

Zamów rozmowę

Pomożemy Ci dopasować do twoich potrzeb mymarzony projekt, wpisz swój numer telefonu nasz konsultant oddzwoni.

Negocjuj cenę projektu Faworyt 3

Zapytaj pytanie o projekt Faworyt 3

Oceny i komentarze

Napisz swoją opinię