Informujemy, iż nasz sklep internetowy wykorzystuje technologię plików cookies a jednocześnie nie zbiera w sposób automatyczny żadnych informacji, z wyjątkiem informacji zawartych w tych plikach (tzw. „ciasteczkach”).

Mazurek BL1

Lustrzane odbicie
  • Tylko online

Dane techniczne

powierzchnia
202.6 m²
wysokość
8.6 m
kąt dachu
35 °
szerokość działki
24.2 m
Liczba pokoi
10
Powierzchnia zabudowy
193.6
kondygnacje
z poddaszem użytkowym
garaż
z garażem 1 st.
dach
dach dwuspadowy
konstrukcja
murowane
zabudowa
domy bliźniacze
piwnica
bez piwnicy
kubatura
714 m³
dostępne odbicie lustrzane
Tak
Pow. użytkowa
202.6 m²
długość działki
20.7 m
Liczba łazienek
4
Powierzchnia dachu
221 m²

Opis projektu

(Uwaga: projekty typu bliźniak oferujemy jako domy dwulokalowe, projekt można zamówić również w zabudowie bliźniaczej) Opis dotyczy jednego segmentu: Propozycja Mazurek to niewielki, komfortowy dom z garażem na jedno auto. Projekt poprzez prostą konstrukcję i zwartą bryłę stawia na ekonomię zarówno podczas budowy jak i w eksploatacji. Mazurek dedykowany jest dla 4-5 osobowej rodziny. Parter budynku to salon połączony z kuchnią i jadalnią, pokój mogący pełnić rolę gabinetu lub pokoju gościnnego, nieduża łazienka, pomieszczenie techniczne z piecem. Pod schodami prowadzącymi na piętro wygospodarowano miejsce na spiżarnię albo garderobę. Piętro to 3 sypialnie, łazienka z miejscem na pralkę. Projekt przewidziany jest do zabudowy wolnostojącej, bliźniaczej oraz szeregowej.

Rzuty

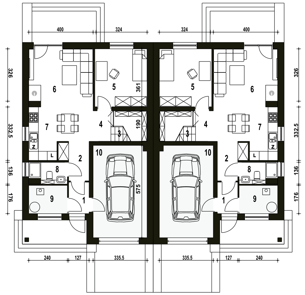
Parter
1. wiatrołap
2,4 m2
2. hol
3,8 m2
3. schody
4,2 m2
4. przedp.+spiżarnia
3,4 m2
5. pokój
11,5 m2
6. salon
18,8 m2
7. kuchnia, jadalnia
5,7 m2
8. łazienka
2,9 m2
9. pom.techniczne*
4,1 m2
10. garaż*
19,0 m2
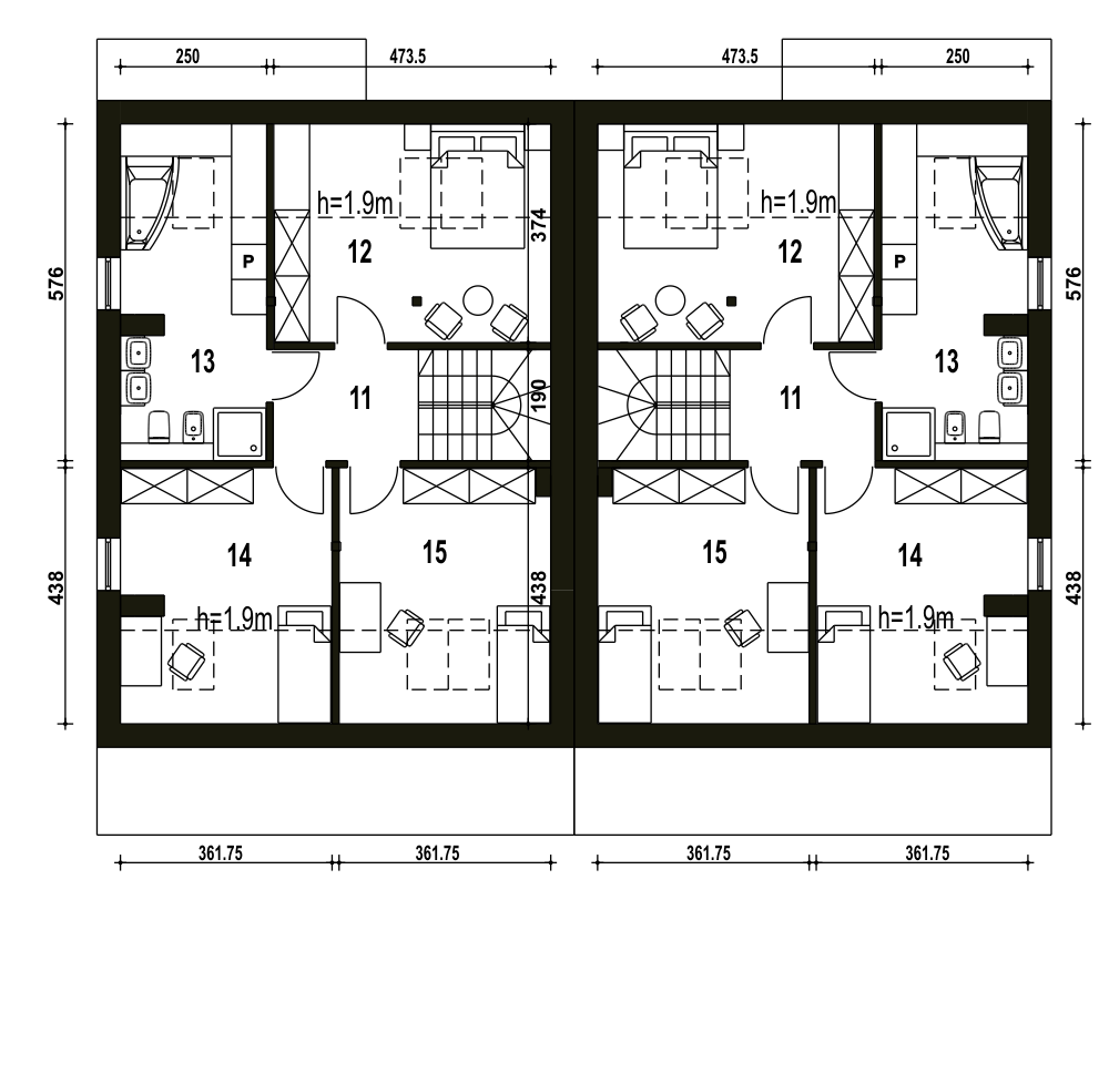
Piętro
11. przedpokój
4,6 (4,6) m2
12. sypialnia
11,6 (17,5) m2
13. łazienka
10,8 (13,9) m2
14. sypialnia
11,3 (16,0) m2
15. sypialnia
10,5 (14,8) m2

Sytuacja

Przekrój

O autorze projektu Mazurek BL1

8 602 zł

Tylko u nas możesz negocjować cenę!
Skorzystaj z tej możliwości.

Lustrzane odbicie: dostępne.

Masz dodatkowe pytania?
Zadzwoń lub zamów rozmowę.

Zamów rozmowę

Pomożemy Ci dopasować do twoich potrzeb mymarzony projekt, wpisz swój numer telefonu nasz konsultant oddzwoni.

Negocjuj cenę projektu Mazurek BL1

Wersja projektu:

Zapytaj pytanie o projekt Mazurek BL1

Wersja projektu:

Oceny i komentarze

Napisz swoją opinię