- Tylko online
Masz pytania? Chciałbyś negocjować cenę
Zadzwoń! 577 575 011
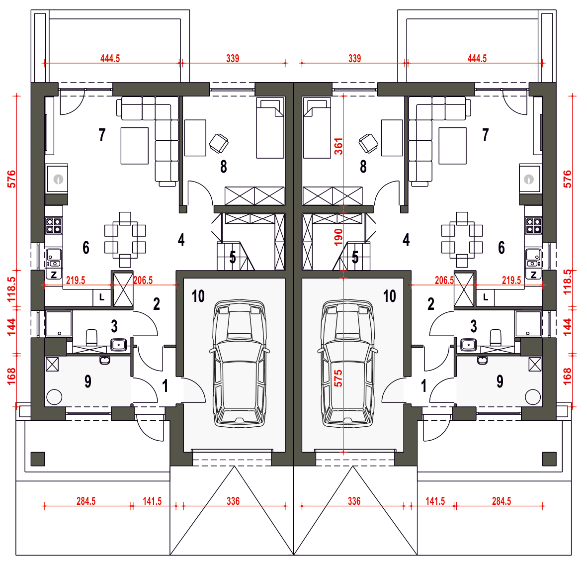
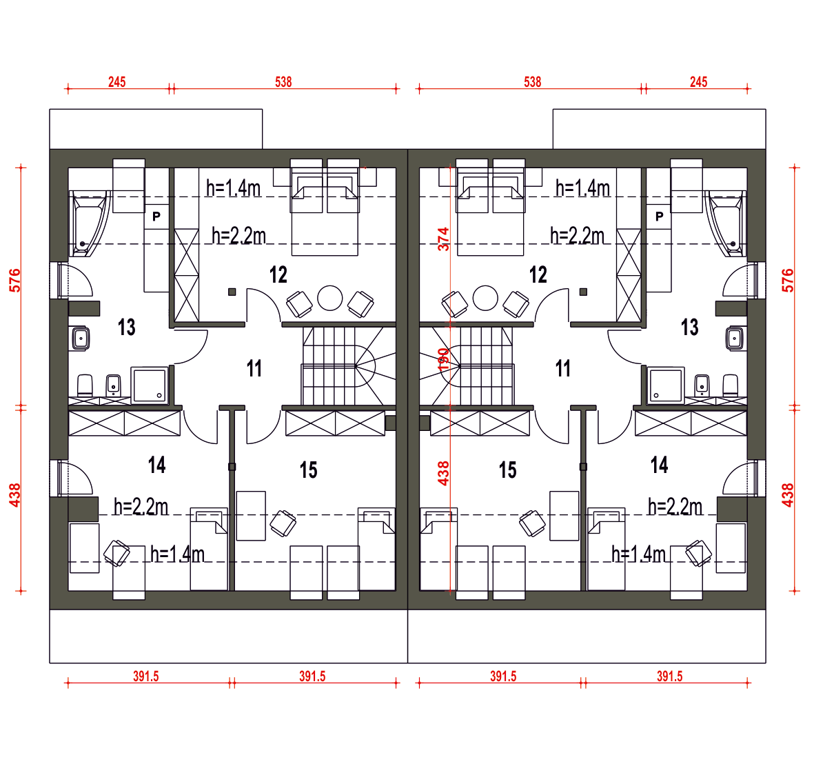
(Uwaga: projekty typu bliźniak oferujemy jako domy dwulokalowe, projekt można zamówić również w zabudowie bliźniaczej) Opis dotyczy jednego segmentu: Propozycja Mazurek III to niewielki, komfortowy dom z garażem na jedno auto. Projekt poprzez prostą konstrukcję i zwartą bryłę stawia na ekonomię zarówno podczas budowy jak i w eksploatacji. Mazurek III dedykowany jest dla 4-5 osobowej rodziny. Parter budynku to salon połączony z kuchnią i jadalnią, pokój mogący pełnić rolę gabinetu lub pokoju gościnnego, nieduża łazienka, pomieszczenie techniczne z piecem. Pod schodami prowadzącymi na piętro wygospodarowano miejsce na spiżarnię albo garderobę. Piętro to 3 sypialnie, łazienka z miejscem na pralkę. Projekt przewidziany jest do zabudowy wolnostojącej, bliźniaczej oraz szeregowej.
