Informujemy, iż nasz sklep internetowy wykorzystuje technologię plików cookies a jednocześnie nie zbiera w sposób automatyczny żadnych informacji, z wyjątkiem informacji zawartych w tych plikach (tzw. „ciasteczkach”).

Mazurek III BL2

Lustrzane odbicie
  • Tylko online

Dane techniczne

powierzchnia
222.4 m²
wysokość
8.4 m
kąt dachu
35 °
szerokość działki
25.4 m
Liczba pokoi
10
Powierzchnia zabudowy
225.4
kondygnacje
z poddaszem użytkowym
garaż
z garażem 1 st.
dach
dach dwuspadowy
konstrukcja
murowane
zabudowa
domy bliźniacze
piwnica
bez piwnicy
dostępne odbicie lustrzane
Tak
Pow. użytkowa
222.4 m²
długość działki
20.7 m
Liczba łazienek
4
Powierzchnia dachu
122.9 m²

Opis projektu

(Uwaga: projekty typu bliźniak oferujemy jako domy dwulokalowe, projekt można zamówić również w zabudowie bliźniaczej) Opis dotyczy jednego segmentu: Propozycja Mazurek III to niewielki, komfortowy dom z garażem na jedno auto. Projekt poprzez prostą konstrukcję i zwartą bryłę stawia na ekonomię zarówno podczas budowy jak i w eksploatacji. Mazurek III dedykowany jest dla 4-5 osobowej rodziny. Parter budynku to salon połączony z kuchnią i jadalnią, pokój mogący pełnić rolę gabinetu lub pokoju gościnnego, nieduża łazienka, pomieszczenie techniczne z piecem. Pod schodami prowadzącymi na piętro wygospodarowano miejsce na spiżarnię albo garderobę. Piętro to 3 sypialnie, łazienka z miejscem na pralkę. Projekt przewidziany jest do zabudowy wolnostojącej, bliźniaczej oraz szeregowej.

Rzuty

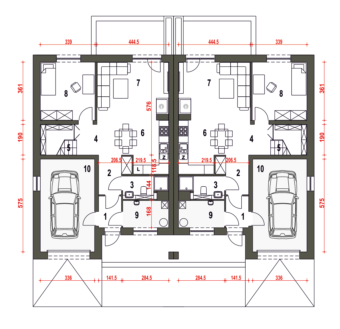
Parter
1. wiatrołap
2,7 m2
2. hol
4,1 m2
3. łazienka
3,6 m2
4. przedp.+spiżarnia
3,3 m2
5. schody
11,5 m2
6. kuchnia, jadalnia
7,1 m2
7. salon
20,4 m2
8. pokój
12,0 m2
9. pom.techniczne*
4,6 m2
10. garaż*
19,0 m2
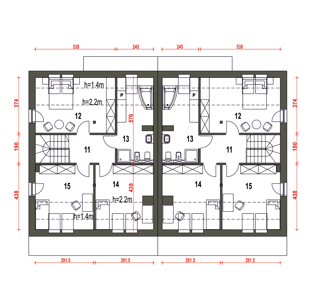
Piętro
11. przedpokój
6,0 (6,0) m2
12. sypialnia
13,2 (20,0) m2
13. łazienka
10,6 (13,7) m2
14. sypialnia
11,7 (16,6) m2
15. sypialnia
12,0 (16,9) m2

Sytuacja

Przekrój

O autorze projektu Mazurek III BL2

8 902 zł

Tylko u nas możesz negocjować cenę!
Skorzystaj z tej możliwości.

Lustrzane odbicie: dostępne.

Masz dodatkowe pytania?
Zadzwoń lub zamów rozmowę.

Zamów rozmowę

Pomożemy Ci dopasować do twoich potrzeb mymarzony projekt, wpisz swój numer telefonu nasz konsultant oddzwoni.

Negocjuj cenę projektu Mazurek III BL2

Wersja projektu:

Zapytaj pytanie o projekt Mazurek III BL2

Wersja projektu:

Oceny i komentarze

Napisz swoją opinię