- Tylko online
Masz pytania? Chciałbyś negocjować cenę
Zadzwoń! 577 575 011
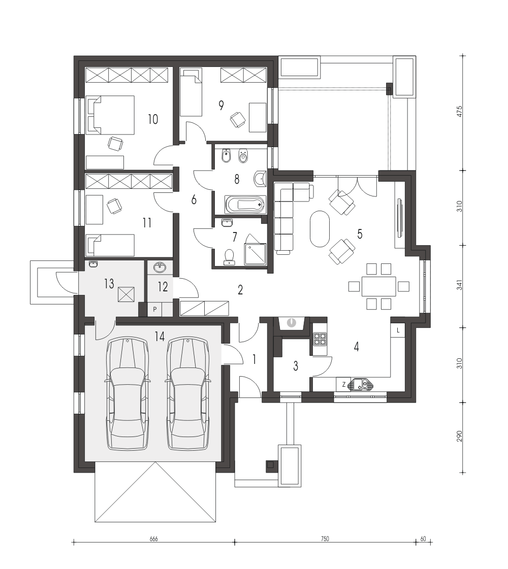
Projekt Mikołaj to wygodny, parterowy dom dla 4-osobowej rodziny z wbudowanym garażem.fundamenty: BETONOWE ściany zewnętrzne: POROTHERM+STYROPIAN TERMO ORGANIKA rodzaj stropu: TERIVA I elewacje: TYNK STRUKTURALNY, OKŁADZINA DREWNIANA pokrycie dachu: DACHÓWKA CERAMICZNA
