Informujemy, iż nasz sklep internetowy wykorzystuje technologię plików cookies a jednocześnie nie zbiera w sposób automatyczny żadnych informacji, z wyjątkiem informacji zawartych w tych plikach (tzw. „ciasteczkach”).

MILUZA

  • Tylko online

Dane techniczne

powierzchnia
100.79 m²
wysokość
8 m
kąt dachu
40 °
szerokość działki
17 m
Liczba pokoi
11
Powierzchnia zabudowy
86.41
kondygnacje
parterowe
garaż
bez garażu
konstrukcja
murowane
zabudowa
domy wolnostojące
piwnica
bez piwnicy
kubatura
485 m³
dostępne odbicie lustrzane
Nie
Pow. użytkowa
100.79 m²
długość działki
18.17 m

Opis projektu

Rzuty

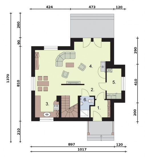
Rzut przyziemia
1. wiatrołap
3.71
2. komunikacja
8.36
3. kuchnia z jadalnią
10.7
4. pokój dzienny
31.06
5. kotłowania/pralnia
5.28
6. łazienka
2.68
Rzut poddasza
1. komunikacja
4.78
2. łazienka
6.34
3. pokój
9.35
4. pokój
10.32
5. pokój
8.21

O autorze projektu MILUZA

3 200 zł

Tylko u nas możesz negocjować cenę!
Skorzystaj z tej możliwości.

Lustrzane odbicie: niedostępne.

Masz dodatkowe pytania?
Zadzwoń lub zamów rozmowę.

Zamów rozmowę

Pomożemy Ci dopasować do twoich potrzeb mymarzony projekt, wpisz swój numer telefonu nasz konsultant oddzwoni.

Negocjuj cenę projektu MILUZA

Zapytaj pytanie o projekt MILUZA

Oceny i komentarze

Napisz swoją opinię