- Tylko online
Masz pytania? Chciałbyś negocjować cenę
Zadzwoń! 577 575 011
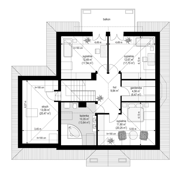
Projekt domu Figiel 2 jest wersją wariantową domu projektu domu Figiel. Willę zaprojektowano tym razem z garażem. Dom przeznaczony jest dla 4- 5-osobowej rodziny. Projekt domu Figiel 2 to parterowy dom z poddaszem użytkowym zaprojektowany na planie prostokąta, z dobudowanym garażem. Przekryty został czterospadowym dachem, z dodatkowymi lukarnami i dachem nad garażem. Wygląd zewnętrzny domu kojarzy się z przedwojenną rezydencją budowaną w miastach-ogrodach lub w podmiejskich letniskach. Jednocząc historyczny detal w elewacjach z nowoczesnymi materiałami i rozwiązaniami budowlanymi uzyskano bardzo ładny styl. Ganek wejściowy z przyporowymi kolumnami, przypory w narożnikach i pasy podmurówki, balkon w elewacji ogrodowej na przyporowych kolumnach - wszystkie te elementy potęgują efekt stabilnego osadzenia się domu w otaczający teren. Dzięki temu budynek wygląda bardzo statecznie. Wnętrze Figla 2 podzielono na część dzienną na parterze i sypialnie na poddaszu. Na parterze opracowano: salon z aneksem jadalnym z pięknym wykuszem, oraz centralnie ustawionym kominkiem, hol - z ładnymi dwubiegowymi schodami, częściowo otwarta kuchnia, oraz dodatkowy pokój, mogący służyć jako gabinet lub sypialnia. Dodatkowo obok przedsionka znajdują się: obszerne pomieszczenie gospodarcze - kotłownia, wc z natryskiem, oraz garaż. Na poddaszu znajdują się trzy sypialnie z jedną dużą wspólną łazienką oraz dodatkowa garderoba. Na półpiętrze nad garażem zaprojektowano strych, który można łatwo zaadaptować na dodatkowy pokój lub pokój sportowy. Pracownia posiada odbicie lustrzane projekt domu Figiel 2.
