- Tylko online
Masz pytania? Chciałbyś negocjować cenę
Zadzwoń! 577 575 011
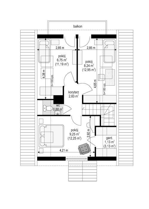
Projekt domu Smyk to budynek o prostej bryle przekrytej dwuspadowym dachem. Dom jednorodzinny (lub domek letniskowy), dla rodziny 3- 4-osobowej. Projekt domu Smyk charakteryzuje bezpretensjonalna architektura i funkcjonalne wnętrze. Na parterze budynku, oprócz salonu zaprojektowano duży holl ze schodami na poddasze, kuchnię i łazienkę. Na poddaszu mieszczą się dwie lub trzy sypialnie. Dom, ze względu na prostą konstrukcję jest niedrogi w budowie i późniejszej eksploatacji. Pracownia posiada również wersję projektu domu Smyk w odbiciu lustrzanym oraz w wersję wariantową projekt domu Smyk 2.
