- Tylko online
Masz pytania? Chciałbyś negocjować cenę
Zadzwoń! 577 575 011
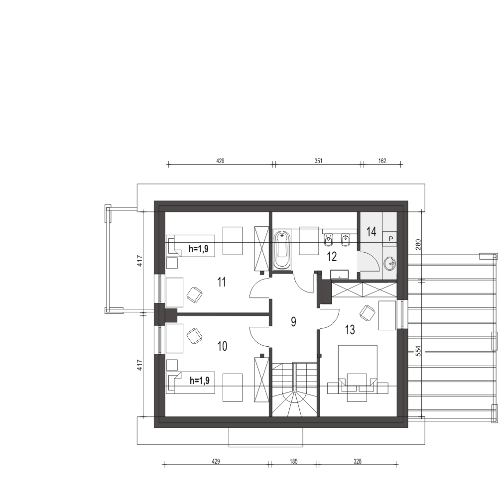
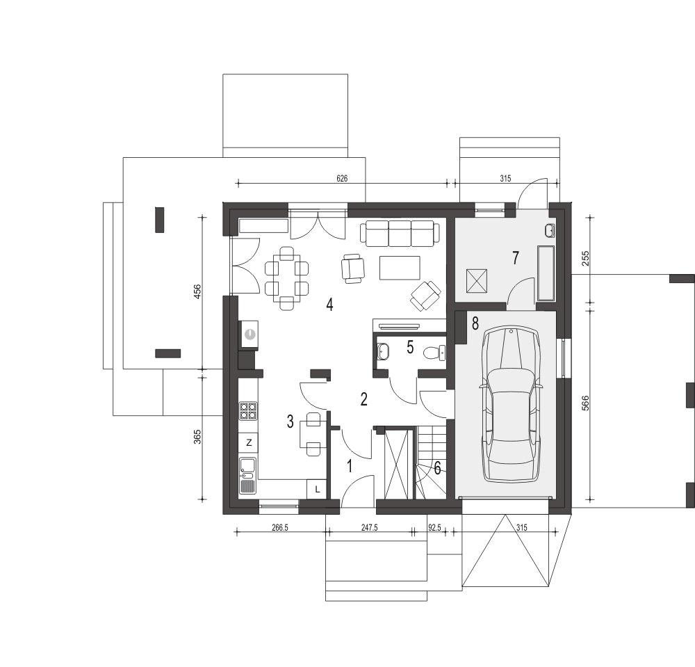
Projekt Monika II to prosty konstrukcyjnie, atrakcyjny, niewielki dom z poddaszem użytkowym dla 4-osobowej rodziny. Oprócz garażu posiada również dobudowaną wiatę na drugi samochód.
