- Tylko online
Masz pytania? Chciałbyś negocjować cenę
Zadzwoń! 577 575 011
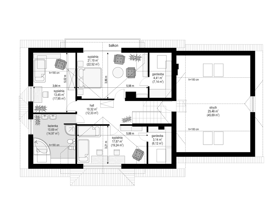
Projekt domu Fokus 2 jest kolejna wersją wariantową projektu domu Fokus - z podwójnym garażem i powiększonym strychem nad częścią garażową. Budynek został zaplanowany z myślą o 4- 6-osobowej rodzinie. Parterowy dom z użytkowym poddaszem, przekryty dwuspadowymi symetrycznymi dachami. Architektura zewnętrzna domu nawiązuje do tradycji polskiego dworku - we współczesnym ujęciu. Zwarta bryła budynku z dobudowaną częścią garażową ozdobiona jest frontową i tylną dużą lukarną, oraz balkonami i zadaszeniem wejściowym na bocznych masywnych kolumnach. Narożny podcień od strony ogrodowej stanowi urozmaicenie prostokątnego rzutu. Wnętrze domu Fokus 2 na parterze tworzy jednoprzestrzenna część dzienna, na którą składają się: salon, aneks jadalny, obszerny hol z wyeksponowanymi schodami, oraz częściowo otwarta kuchnia. Na parterze mieszczą się dodatkowo dwa pomieszczenia, oraz dwustanowiskowy garaż i kotłownia. Na poddaszu przewidziano trzy wygodne sypialnie z garderobami, przestronną łazienkę, oraz strych, który również można zaadaptować na cele użytkowe. Pracownia posiada wydanie projektu domu Fokus 2 w odbiciu lustrzanym.
