- Tylko online
Masz pytania? Chciałbyś negocjować cenę
Zadzwoń! 577 575 011
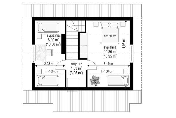
Projekt domu Francik to budynek jednorodzinny lub letniskowy. Łatwy i tani w budowie. Domek przykryto dwuspadowym dachem z jedną połacią przedłużoną, pod którą znajdują się: sień wejściowa i pomieszczenie gospodarcze. Projekt domu Francik na parterze posiada duży salon z kominkiem oraz kuchnię i łazienkę. Na poddaszu mieszczą się dwie sypialnie. Wejście do domu można umieścić zarówno od szczytu budynku jak również z boku (od połaci dachu). Dzięki temu dom wybudowany na podstawie projektu domu Francik można usytuować na dowolnej działce.

wąska działka
Szukam projektu na Archido na wąską działkę i ten projekt jest świetny. Fajnie dobrane kolory elewacji i dachu.