- Tylko online
Masz pytania? Chciałbyś negocjować cenę
Zadzwoń! 577 575 011
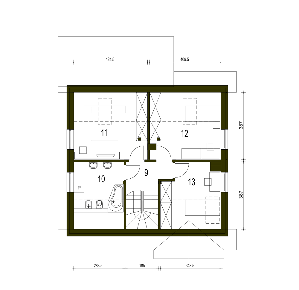
Nela to projekt domu jednorodzinnego, powstały po modyfikacji domu Inka II. Jest to niewielki dom z poddaszem użytkowym, przeznaczony dla 3-4 osób, mieszczący wszystkie potrzebne pomieszczenia w bardzo funkcjonalnym układzie.fundamenty: BETONOWE ściany zewnętrzne: POROTHERM+STYROPIAN TERMO ORGANIKA ściany wewnętrzne: POROTHERM, GK rodzaj stropu: TERIVA I elewacje: TYNK STRUKTURALNY, OKŁ.KLINKIEROWA pokrycie dachu: DACHÓWKA CEM. lub CER.
