- Tylko online
Masz pytania? Chciałbyś negocjować cenę
Zadzwoń! 577 575 011
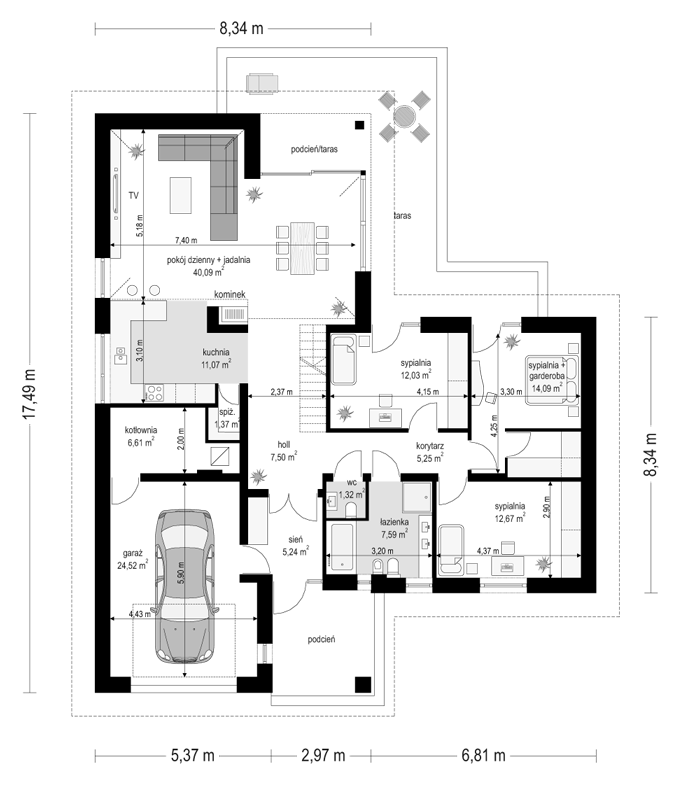
Projekt domu Parterowy to dom jednorodzinny dla czteroosobowej rodziny. Zaprojektowaliśmy już wiele jednokondygnacyjnych domków - ten projekt to nasza obecna odpowiedź na pytanie: jak powinien wyglądać sensowny średniej wielkości domek parterowy dla polskiej rodziny. Bryła domu została zbudowana na planie litery „T”. Dom Parterowy przykryty jest wielospadowym łagodnym dachem. Nowoczesna architektura domu została podkreślona odpowiednimi materiałami wykończeniowymi i kolorystyką. Dom jest nowoczesny, ale też stonowany, bez awangardowej przesady. Dzięki temu architektura domu będzie długo aktualna i nie zestarzeje się łatwo. Szare ramy okien i drzwi, oraz drewniane fragmenty ścian stanowią kontrast do bieli ścian. Całość bryły zwieńczona jest grafitowym dachem z płaskich dachówek. Front domu ozdobiona jest szerokim przeszklonym wejściem z naświetlami. Elewację ogrodową urozmaica narożne przeszklenie salonu połączone z podcieniem nad częścią tarasu. Wnętrze domu to trzy strefy, połączone częścią wejściową : przedsionkiem i holem. Na lewo z przedsionka przechodzimy do strefy gospodarczej domu, z ładnym garażem, kotłownią i strychem nad garażem. Na wprost sieni, przeszklonymi szerokimi drzwiami przechodzimy do holu i dalej do części dziennej, składającej się z salonu, jadalni i kuchni połączonych w jedno wspólne wnętrze, rozdzielone kominkiem. W projekcie domu Parterowy nad pokojem dziennym przewidziano otwarcie przestrzenne aż do dachu, oraz strych – antresolę ze schodkami, z widokiem na salon. Na antresoli można urządzić pokój rekreacyjny, albo gabinet-bibliotekę - wedle fantazji właścicieli. Trzecia część domu to sypialnie. Składa się z sypialni rodziców z garderobą, dwóch sypialni dziecięcych z szafami wbudowanymi, łazienki i oddzielnego wc. Nad sypialniami również znajduje się strych, dostępny z antresoli nad salonem. Projekt domu Parterowy jest nieduży, ale mieści wszystkie funkcje potrzebne do komfortowego życia pełnej rodziny. Bryła domu jest dość prosta. Budynek jest jednokondygnacyjny - nieskomplikowany i niedrogi w budowie i późniejszej eksploatacji. Jeśli macie Państwo w planach dom parterowy - z pewnością warto wziąć pod uwagę wybór tego projektu. Zapraszamy do zapoznania się z pełną ofertą pracowni MG Projekt: Parterowy 2, Parterowy 3, Parterowy 4.
