- Tylko online
Masz pytania? Chciałbyś negocjować cenę
Zadzwoń! 577 575 011
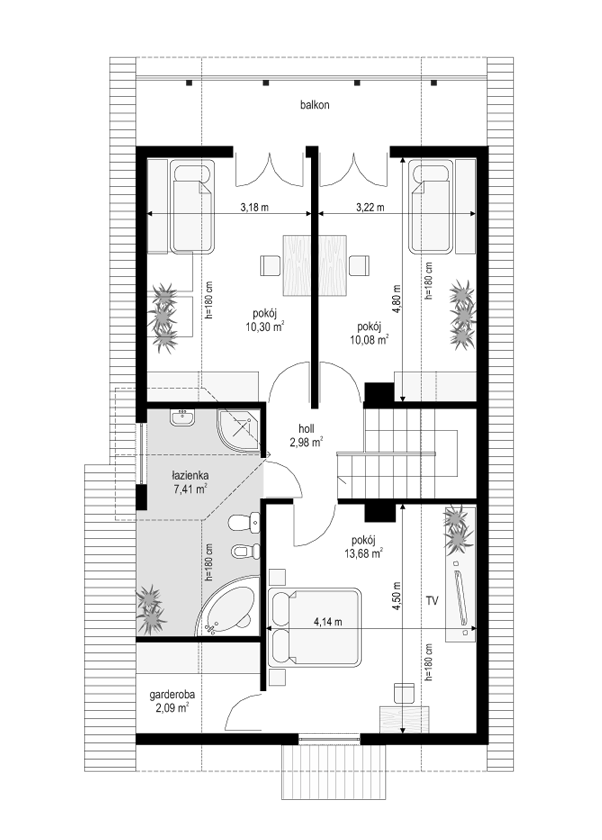
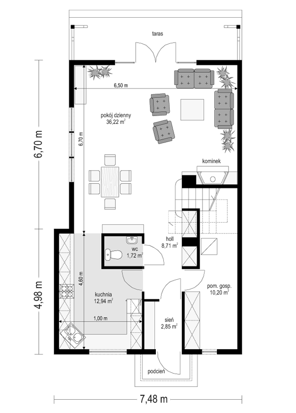
Projekt domu Słowik to parterowy budynek z poddaszem użytkowym. Dom jednorodzinny przeznaczony dla rodziny 4- 5-osobowej, mogący służyć zarówno jako domek jednorodzinny całoroczny jak i letniskowy. Urokliwy, dzięki ciekawym detalom dom ma w rzeczywistości dość prosty układ. Budynek, ze względu na nieskomplikowaną konstrukcję, będzie łatwy w budowie, co odbije się pozytywnie na kosztach inwestycji. Projekt domu Słowik został stworzony w technologii szkieletowej drewnianej. Elewacja domu jest szalowana deskami, ale można również wykonać ją jako tynkową. Domek Słowik dzięki niewielkiej szerokości doskonale wpasuje się również na wąską działkę. Na parterze domu, zaprojektowano jednoprzestrzenną część dzienną, z salonem, holem i częściowo otwartą kuchnią. Z salonu szerokimi drzwiami wychodzimy na częściowo zadaszony taras. W projekcie obok przedsionka umieszczono kotłownię. Na poddaszu znajdują się trzy sypialnie i łazienka. Projekt domu Słowik dostępny jest też w wersji odbicia lustrzanego.
dobrym pomysłem sa prywtane garderoby takie jak tutaj w domu Ofelia. Wtedy w sypialni ma się swoje ciuchy w jednym miejscu a to rano w momencie pospiechu bardzo ułatwia zycie. Uwierzcie mi. Dobry pomysł Archido!
Tradycyjne projekty domów nie muszą być nudne. I dla mnie Ofelia właśnie jest przykładem prostego, nieskomplikowanego projektu z doskonałym wnetrzem. Przeglądam ten dom i myślę ze doskonale spełni moje oczekiwania. Jak dla mnie projekt na 5+, fajna propozycja Archido!
Piękne okiennice i bryła nawiązująca do tradycyjnych polskich dworków. Piękny taras! Na pewno to wszystko razem sprawi, że dom Ofelia będzie zapewniał cudowną, domową atmosferę dla wszystkich domowników. Kolejny raz Archido pokazało się z jak najlepszej strony:)
Piękna willa i zapewnie bardzo funkcjonalna. W projektcie Ofelia najbardziej chyba podoba mi się właśnie ta olbrzymia i niesamowicie przestronna część dzienna. Nawet na Archido.pl mimo, że mają świetne projekty, rzadko można znaleźć aż tak dużą i otwartą przestrzeń. My zawsze zapraszamy do siebie dużo gości więc fajnie jest mieć gdzie ich pomieścić. No i dodatkowo ten balkon - z dwóch stron osłonięty ścianami...Mnie to przekonuje! :)
Polecam z własnego doświadzcenia suszarnię w takim miejscu jak strych. W takim domu jak Ofelia to się akurat przyda i będzie to najlepsze miejsce na tego typu pomieszczenie, zawsze można tam trzyac miejsce na suszenie ubrań. Odpowiednia prestrzeń a latem wszytsko bardzo szybko schnie bo est ciepło
Ja bym zostawiła strych taki jaki jest. Akurat zostanie dużo przestrzeni na przechowywanie nieużywanych rzeczy albo pamiątek. Ofelia już teraz oferuje niezłą przestrzeń mieszkalną, nie ma co zmieniać i bawić się w koszty. Projekt bardzo udany i dobrze zagospodarowany, akurat w Ofelii jest miejsce na wszystko :P
Co się da zaaranzowac na takim strychu? W sesnie chciałem zapytać czy można tam stworzyć na przykład doatkową sypialnie, czy on jest raczej przystosowany, żeby w nim zrobić na przykald przydatna pralnię, może suszarnię, albo miejsce do prasowania ubran i składowania jakiś rzeczy. Ktoś to adaptował i może się podzielić swoją opiniia?z góry dzięki. pozdrawiam
Tak, można sprawdzić. W biurze Archido pewnie tez by Ci powiedzieli, ale po co dzwonić jak masz wszytsko w danych technicznych podane w zakąłdce przy rzutach wnętrza. Cena budwy do stanu surowego zamkniętego to jest ponad 270 tysięcy złotych, a za stan pod klucz trzeba zapłacić koszt około 511 tysięcy złotych. Całkiem sporo, ale chyba jak na taki całkiem duzy metrażowo dom o dość urozmaiconym kształcie to uczciwa rozsadna cena. Jest tutaj co robić…
Ej słuchajcie, jaki koszt budowy takiego domku z Archido? Raczej jest niemały, dlatego zastanawiam się ile może kosztowac już z wykończeniem wszystkiego?! Można gdzies to sprawdzić czy trzeba od razu dzwonic w tej sprawie do biura projektowaego?
Słuchajcie, podejrzewam, ze adaptacja strychu to żaden problem. Kolezanka robiła cos takiego i opowiadała, że to jest wykonalne. Nawet jeśli miałaby być tam tylko pralnia to szkoda zmarnowc takiej przestrzeni.
Podłączam się pod pytanie, w sumie tez już patrzyłam kilka razy na ten strych do adaptacji i to jest w sumie taka całkiem duża przestrzeń. Fajne byłoby to miejsce na sypialnię dodatkową albo pokój gościnny. Ktoś ? Coś ? może ktoś z czytających Archido pomoże
Wydaje mi się, że to chyba łatwo zaadaptować. Ja tez o tym myślałam, to jest dobre miejsce nawet na przechiwywanie jakiś niepotrzebnych rzeczy, taka „graciarnia”. Z tego co widze na tych zdjęciach to tam jest nawet okno w dachu, więc pewnie bez problemu da się tam zrobić nawet jakiś pokój i to całkiem spory. ktoś musi potwierdzić. Ktoś z Archido może?
ktoś robił coś z tym strychem?! Bo widze go już w kilku projektach gotowych tutaj na archido i zatsanawam się czy się przydaje i czy łatwo go zaadaptować ? Kolezanka mowila, że zrobiła sobie tam suszarnie. Polecacie ? ktoś coś ma jakieś doświadzczenie w tej sprawie? Czekam na informacje

garderoby
Ktoś u mnie z c=rodziny sobie wymyślił, ze w domu zrobi takie prywtane garderoby jak w domu Ofelia, dosłownie w każdej z czterech sypialni. Wtedy wszyscy się smiali a teraz każdy widzi jakie to wygodne i funkcjonalne a nie wielkie szafy, które dużo kosztują. Garderoba jest poeczniejszym rozwiązaniem. Pozdrawiam serdecznie ;-)