- Tylko online
Masz pytania? Chciałbyś negocjować cenę
Zadzwoń! 577 575 011
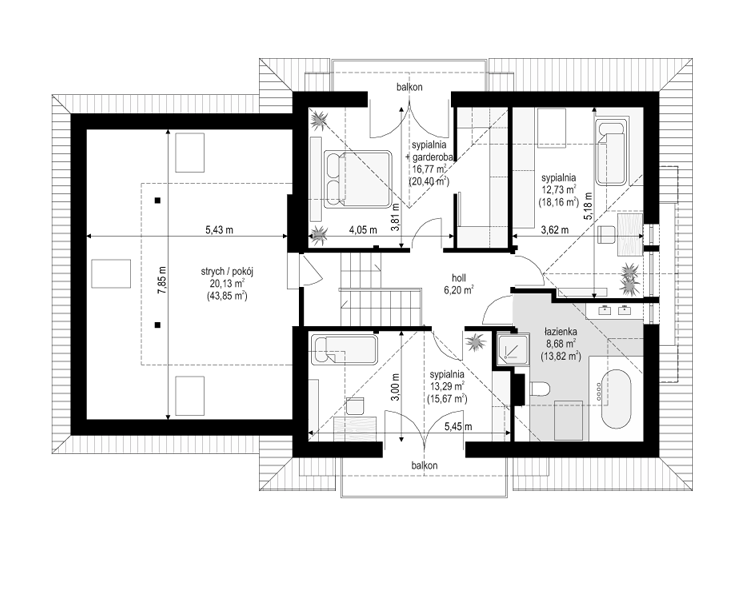
Projekt domu Willa Julia MGProjekt jest jednym z dwóch najnowszych projektów inspirowanych cieszącym się popularnością projektem Julka. Domy są bardzo podobne do swojego pierwowzoru, pozmieniano w nich jednak i usprawniono niektóre rzeczy, wprowadzając rozwiązania Inwestorów budujących wcześniej Julkę. Projekt domu Willa Julia architektura i wnętrze Willa Julia zatem to dom parterowy z poddaszem użytkowym, przykryty czterospadowym dachem z dobudowaną częścią garażową, z dużym dwustanowiskowym garażem i poddaszem- strychem. Architektura budynku to połączenie tradycyjnej formy polskiego dachowca, z wielospadowym dachem urozmaiconym szerokimi lukarnami, z nowoczesnymi detalami i materiałami zastosowanymi w budynku. Front w projekcie domku Willa Julia zaakcentowano podcieniem wejściowym z balkonem na kolumnach. Stąd, szerokimi drzwiami z bocznymi naświetlami przechodzimy do wnętrza projektu Willa Julia. Od strony ogrodu w projekcie domu Willa Julia zaplanowano wygodny podcień – zadaszenie tarasu i piękne niskie okno z salonu na ogród. Duże przeszklenia z ładnymi podziałami stanowią ozdobę projektu Willa Julia. Dobrze dobrane proporcje ścian i dachu sprawiają, że projekt Willa Julia nie traci ludzkiej skali. We wnętrzu projektu domku Willa Julia na parterze przewidzieliśmy dużą część dzienną, z salonem, jadalnią, holem i kuchnią. Przy kuchni domostwa zaprojektowano spiżarkę. Przy wejściu do domu Willa Julia mamy niewielki pokój - na przykład domowe biuro (mogące służyć okazyjnie jako sypialnia gościnna). Pod schodami umieszczono wc, oraz przejście drzwiami do części garażowo –gospodarczej. Za dużym garażem w tym domu jednorodzinnym znajduje się kotłownia. Na poddaszu budynku zaprojektowaliśmy trzy wygodne sypialnie: sypialnie dzieci z szafami wbudowanymi, oraz sypialnię rodziców z garderobą. Dodatkowo miejsce znalazła spora łazienka. Nad garażem w projekcie domku Willa Julia mieści się strych do dowolnego zagospodarowania. Gotowy projekt domu jednorodzinnego Willa Julia jest budynkiem energooszczędnym, bardzo dobrze ocieplonym, o zwartej bryle, dzięki czemu koszt budowy domu jest niski. Gotowy projekt domku Willa Julia będzie dość łatwy w budowie i niedrogi w późniejszym użytkowaniu. Projekt Willa Julia dostępny jest także w odbiciu lustrzanym, oraz jako wersja projektu domu Willa Julia 2,
Jak dla mnie wygrywa ta druga opcja ze schowkiem. Takic pomiesczeń jest zawsze mało. A tu już jest jakaś malutka powierzchnia do wykorzystania. Przydatnie. W mieskznaiu w blokach zawsze dskwiera brak odpowiedniej ilości miejsca na przechowywanie różnych rzeczy,a w domu już można trochę bardziej poszaleć ze skrytkami.

solidna firma
Widziałam już podstawowy wariant tego domu i podoba mi się to, że na poddaszu nie dość że są zaadaptowane całkiem spore sypialnie, to jeszcze prawie każda z nich ma dostęp do balkonu. Dla mnie to bardzo fajne rozwiązanie bo lubię wypić sobie kawkę na zewnątrz, zwłaszcza w te ciepłe poranki oczywiście. Archido się spisuje na medal widzę więc naprawdę, oby tak dalej...