- Tylko online
Masz pytania? Chciałbyś negocjować cenę
Zadzwoń! 577 575 011
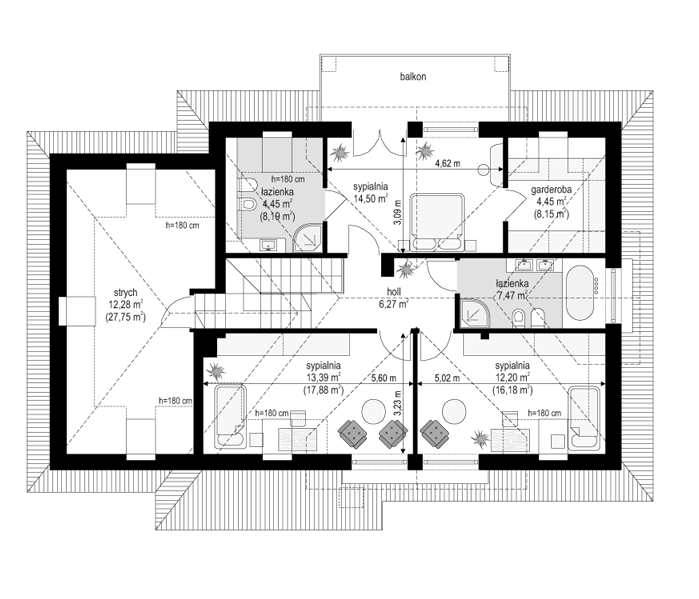
Projekt domu Gabryś to budynek dla 4- 6-sobowej rodziny. Parterowy, z poddaszem użytkowym, przykryty został czterospadowym dachem, z trzema ozdobnymi lukarnami - po jednej na każdej elewacji. Do części mieszkalnej dobudowany jest garaż ze strychem na poddaszu. Projekt domu Gabryś to bardzo dostojny i elegancki dom, podkreślający status i dobry gust właściciela. Architektura domu Gabryś to połączenie klasycznego stylu, odwołującego się do polskiego dworku, z jego nowoczesną interpretacją. Reprezentacyjne wejście podkreślone zadaszonym podcieniem i kolumną z przyporą, oraz rozłożystymi schodkami, w połączeniu z dużą lukarną na poddaszu z dwoma łukowymi oknami tworzą pełną uroku elewację frontową. Podobnie strona ogrodowa – z zadaszonym tarasem, balkonem na dwóch kolumnach i szeroką lukarną będzie bardzo atrakcyjnym tłem dla ogrodu. Wnętrze domu jest bardzo przestronne i funkcjonalne. Wygodny przedsionek i duży holl, połączony przestrzennie z salonem i z ładnie wyeksponowanymi schodami na poddasze tworzą atrakcyjne wejście do domu. Wygodna kuchnia połączona jest częściowo z salonem. W pokoju dziennym, prócz miejsca na meble wypoczynkowe, kominek i ścianę TV, znalazł się też aneks jadalny, z ładnym wykuszem z oknem. Na parterze mieszczą się też: dodatkowy pokój (gabinet lub sypialnia), duża kotłownia, oraz garaż z pomieszczeniem gospodarczym na sprzęty ogrodowe. Na poddaszu zaprojektowano od strony ogrodowej wydzielony apartament rodziców z własną łazienką, garderobą i tarasem z widokiem na ogród, oraz dodatkowo dwie ładne sypialnie dzieci z łazienką. Nad garażem znajduje się strych, który bardzo łatwo można zaadaptować na pomieszczenie użytkowe. Pracownia posiada również wersję odbicia lustrzanego projektu domu Gabryś.
