- Tylko online
Masz pytania? Chciałbyś negocjować cenę
Zadzwoń! 577 575 011
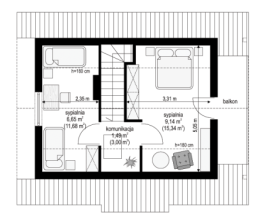
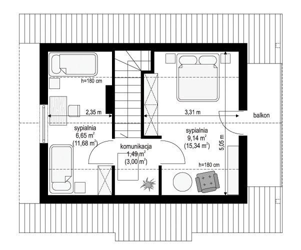
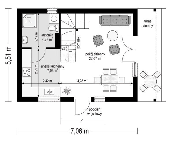
Projekt domu Sosenka Drewniana to mały zgrabny domek. Może pełnić funkcję letniskowego, ale również całorocznego domu. Jego zaletami są właściwe proporcje nadające estetyczny wygląd budynku, funkcjonalne wnętrze oraz prosta, tania w budowie konstrukcja. Pracownia posiada wiele wersji Sosenek ze zmienionymi gabarytami - z balkonem i tarasem z boku domu (Sosenka 4), przedłużony o 0,5 m - bez balkonu, przedłużony o 1,5 m z pomieszczeniem gospodarczym przy kuchni (Sosenka 3), z gankiem wejściowym (Sosenka 2), czy powiększony wariant domu (Sosenka 5). Projekt domu Sosenka Drewniana dostępny jest również w wersji odbicia lustrzanego, oraz dwóch wersjach wariantowych - z gankiem (Projekt domu Sesenka Drewniana Wariant B) i w wersji poszerzonej (Projekt domu Sesenka Drewniana Wariant D).
