- Tylko online
Masz pytania? Chciałbyś negocjować cenę
Zadzwoń! 577 575 011
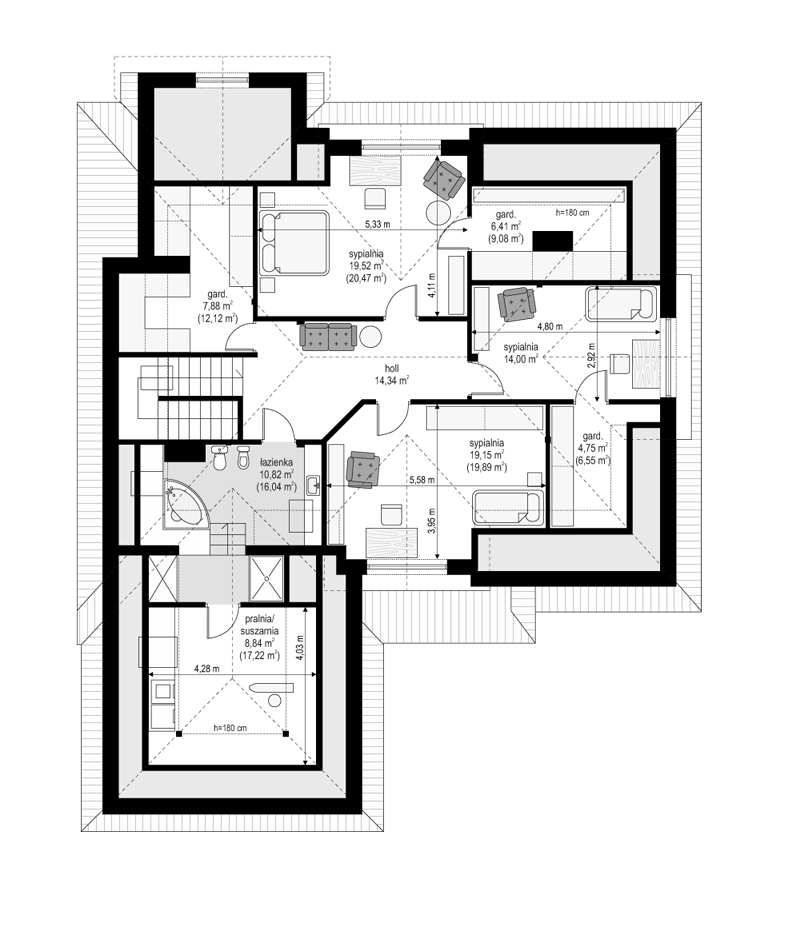
Projekt domu Sympatyczny to parterowy dom z poddaszem. Budynek przystosowany dla 4- 5-osobowej rodziny. Spokojna, powściągliwa sylwetka, z dużym wielospadowym dachem mieści w sobie bardzo funkcjonalne, przemyślane wnętrze. Rozwiązania zastosowane w domu Sympatyczny, takie jak duża sień wejściowa, ładny przestrzenny holl z wygodnymi schodami, duża kotłownia, garaż czy spiżarnia sprawiają, że przyszłym właścicielom będzie się dobrze mieszkało w ich domu. Salon połączony z holem i jadalnią tworzą ładne jednoprzestrzenne wnętrze, otwarte na ogród dzięki dużym oknom. Na poddaszu każdy pokój ma swoją garderobę, a duża łazienka została połączona z pralnią nad garażem. Pracownia posiada też wersję projektu domu Sympatyczny w odbiciu lustrzanym.
Nawet w jednopoziomowym domu powinno się oddzielić miejsce do spania i częsć dzienną. Dobrze, że projektanci domu Oliwka o tym pomyśleli. No i dwie łazienki to jest coś, co zawsze jest strzałem w dziesiątkę i poprawia komfort życia.
Dzień dobry. W opisie projektu Oliwka przeczytałem o możliwości doprojektowania garażu. Wiem, że jest już dużo gotowych projektów, ale zależałoby mi, żeby elewacja była identyczna jak na domu. Jeśli jest to możliwe proszę też o wycenę. Dziękuję i Pozdrawiam. Mariusz.
Jest szansa powiększenia tego domu o niewielki garaz?
Nie mowie nawet o wkomponowywaniu go w brylę domu tylko o zwyczajnej dobudówce. Oczywscie przejście miedzy domem a garażem trzeba było by wykuć, żeby jakost o połączyć

Widzę kilka domów o podobnym układzie i myślę, że dla naszej rodzinki (4 osoby) będzie idealny. Ten wygrywa ciekawą elewacją. Podobnie jak Krzysiek byłbym zainteresowany jakimś garażem.