Informujemy, iż nasz sklep internetowy wykorzystuje technologię plików cookies a jednocześnie nie zbiera w sposób automatyczny żadnych informacji, z wyjątkiem informacji zawartych w tych plikach (tzw. „ciasteczkach”).

ONTARIO z płazów drewnianych

  • Tylko online

Dane techniczne

powierzchnia
102.29 m²
wysokość
6.7 m
kąt dachu
43 °
szerokość działki
15.8 m
Liczba pokoi
12
Powierzchnia zabudowy
88
kondygnacje
parterowe
garaż
bez garażu
konstrukcja
murowane
zabudowa
domy wolnostojące
piwnica
z piwnicą
kubatura
459.25 m³
dostępne odbicie lustrzane
Nie
Pow. użytkowa
102.29 m²
długość działki
17.2 m

Opis projektu

Rzuty

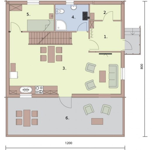
Rzut przyziemia
1. hall
5.16
3. salon z aneksem kuchennym
34.94
4. łazienka
5
2. pomieszczenie gospodarcze
2.69
5. sypialnia
6.64
6. taras
26.22
Rzut poddasza
1. pokój
13.34
2. komunikacja
15.14
3. łazienka
6.04
4. pokój
13.34
Rzut piwnicy
1. piwnica
38.65
2. wiata
26.49

O autorze projektu ONTARIO z płazów drewnianych

3 600 zł

Tylko u nas możesz negocjować cenę!
Skorzystaj z tej możliwości.

Lustrzane odbicie: niedostępne.

Masz dodatkowe pytania?
Zadzwoń lub zamów rozmowę.

Zamów rozmowę

Pomożemy Ci dopasować do twoich potrzeb mymarzony projekt, wpisz swój numer telefonu nasz konsultant oddzwoni.

Negocjuj cenę projektu ONTARIO z płazów drewnianych

Zapytaj pytanie o projekt ONTARIO z płazów drewnianych

Oceny i komentarze

Napisz swoją opinię