- Tylko online
Masz pytania? Chciałbyś negocjować cenę
Zadzwoń! 577 575 011
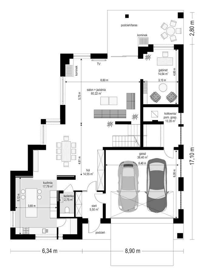
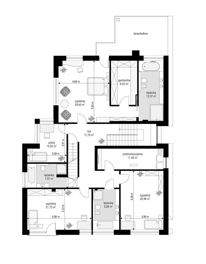
Prezentujemy Państwu projekt domu jednorodzinnego Rezydencja leśna. Jest to piętrowy, duży, komfortowy dom, przeznaczony dla rodziny 4- 6-osobowej. Projekt domu Rezydencja Leśna jest nowoczesny, ma zwartą bryłę, oraz funkcjonalne wnętrze. Został zaprojektowany w stylu piętrowej miejskiej willi. Główna bryła przekryta jest czterospadowymi dachami - elewacja frontowa jest szersza i zwęża się w kierunku ogrodu, dzięki czemu dom ma dwa oblicza: masywny reprezentacyjny przód i bardziej rozczłonkowany tył z załamaniami i dobudówkami, utrzymujący ludzką skalę. Elewacje zostały podzielone na poziome pasy - uzyskano w ten sposób lżejszą i ciekawszą sylwetkę budynku. Duże przeszklenia, narożne okna, wcięcia i wystające wykusze ozdabiają dom i nadają mu nowoczesny dynamiczny charakter. Wnętrze domu jest bardzo komfortowe i zawiera wszystko czego właściciele mogliby sobie zamarzyć. Na parterze szerokim przeszklonym wejściem z przedsionka wchodzimy do jednoprzestrzennego salonu połączonego z jadalnią i holem. Pokój dzienny łączy się pięknymi przeszkleniami z tarasem i ogrodem. Częściowo otwarta na jadalnię kuchnia z wyspą i spiżarnią usytuowana jest od frontu - z dużym oknem na wejście do domu. Na parterze znajdują się też: dwustanowiskowy garaż, kotłownia, oraz gabinet. Taras od strony ogrodu przykryty jest częściowo zadaszeniem. Piętro zawiera cztery duże sypialnie, w tym wygodny apartament rodziców, z własną łazienką, garderobą i tarasem ogrodowym. Dodatkowo są tutaj dwie łazienki i pomieszczenie pralni. Na samej górze domu zlokalizowany jest strych, który można wykorzystać na poddasze użytkowe i zrobić tam np. pomieszczenie rekreacyjne. Projekt domu Rezydencja Leśna zaprojektowano z wykorzystaniem energooszczędnym materiałów i technologii, dzięki czemu, mimo niemałej powierzchni, jego koszty utrzymania nie będą duże.
