Informujemy, iż nasz sklep internetowy wykorzystuje technologię plików cookies a jednocześnie nie zbiera w sposób automatyczny żadnych informacji, z wyjątkiem informacji zawartych w tych plikach (tzw. „ciasteczkach”).

Parterowy 2 wariant B

  • Tylko online

Dane techniczne

powierzchnia
245.17 m²
wysokość
7.09 m
kąt dachu
35 °
szerokość działki
27.52 m
Liczba pokoi
6
Powierzchnia zabudowy
254.53
kondygnacje
parterowe
garaż
z garażem 2 st.
dach
dach wielospadowy
konstrukcja
murowane
zabudowa
domy wolnostojące
piwnica
bez piwnicy
kubatura
980 m³
dostępne odbicie lustrzane
Nie
Pow. użytkowa
245.17 m²
długość działki
25.69 m
Liczba łazienek
3
Pow. netto
252.02

Opis projektu

Wariant projektu Parterowy 2 ze zmienionym kątem nachylania dachu i zagospodarowanym poddaszem.

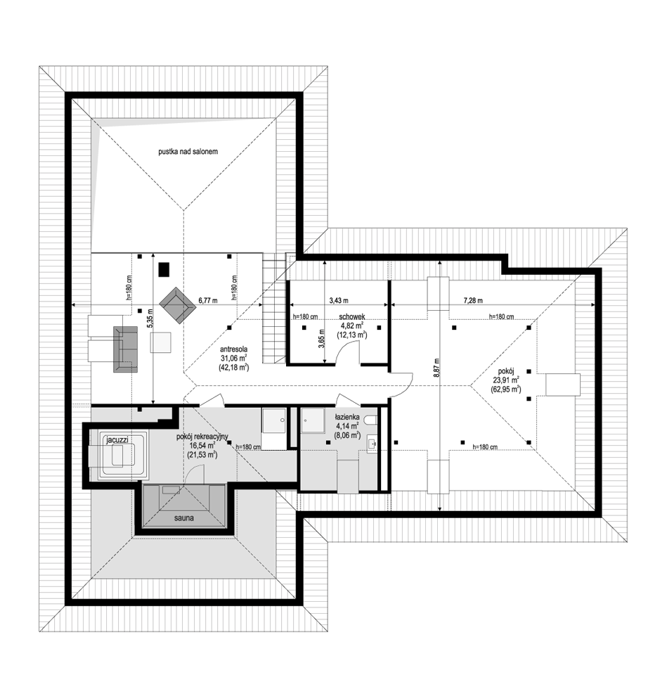
Rzuty

Kondygnacja 1
Kondygnacja 3

Elewacje

Sytuacja

O autorze projektu Parterowy 2 wariant B

7 490 zł

Tylko u nas możesz negocjować cenę!
Skorzystaj z tej możliwości.

Lustrzane odbicie: niedostępne.

Masz dodatkowe pytania?
Zadzwoń lub zamów rozmowę.

Zamów rozmowę

Pomożemy Ci dopasować do twoich potrzeb mymarzony projekt, wpisz swój numer telefonu nasz konsultant oddzwoni.

Negocjuj cenę projektu Parterowy 2 wariant B

Zapytaj pytanie o projekt Parterowy 2 wariant B

Oceny i komentarze

Napisz swoją opinię