- Tylko online
Masz pytania? Chciałbyś negocjować cenę
Zadzwoń! 577 575 011
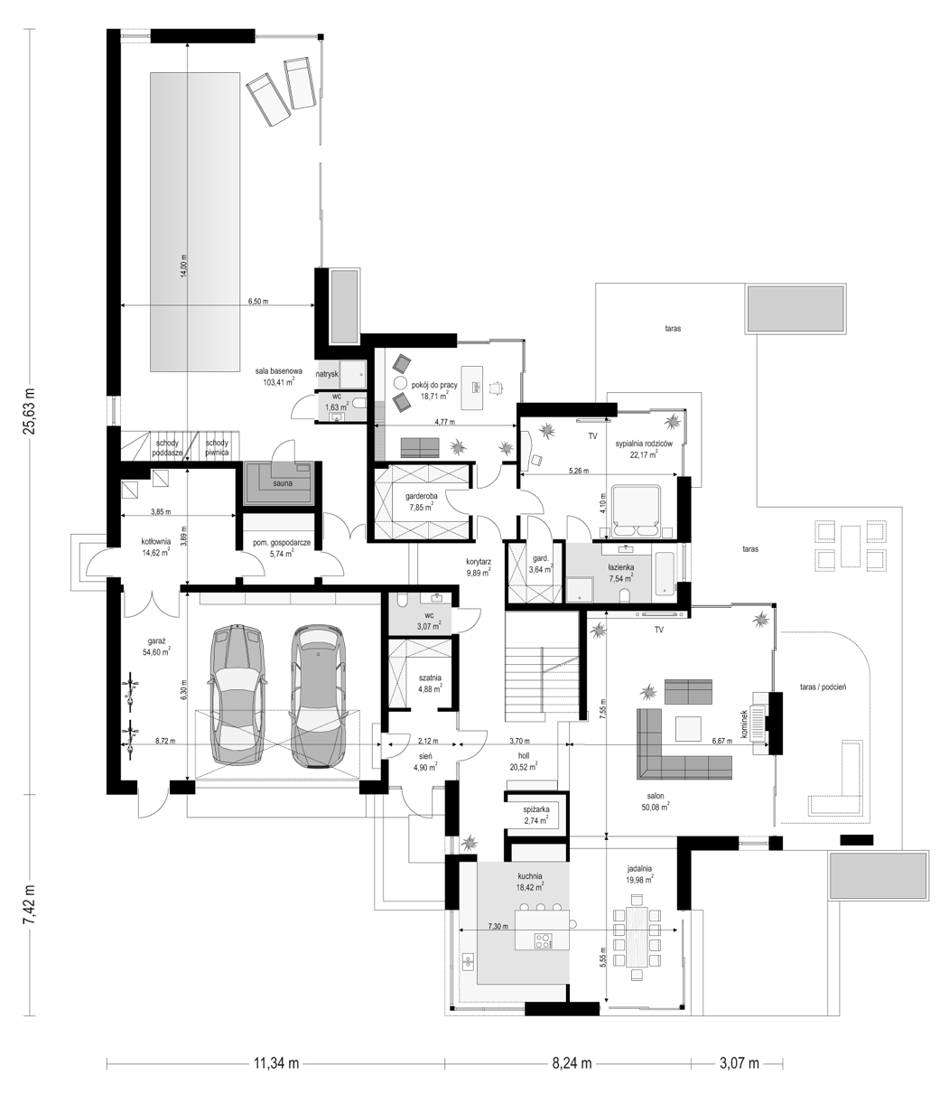
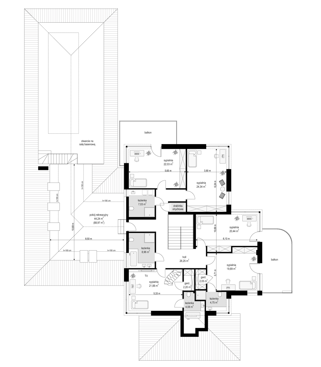
Projekt domu Rezydencja z Widokiem to projekt okazałej rezydencji, największego z serii „Domów z Widokiem”. Jest to luksusowy, superkomfortowy dom jednorodzinny dla cztero-, a nawet ośmioosobowej rodziny. To piękna, rozłożysta willa z mnóstwem przestrzeni i z częścią rekreacyjno - basenową. Budynek powtarza rozwiązania i detale popularnego i modnego wśród Klientów „Domu z widokiem”, ale jest to wydanie superluksusowe tego projektu. Architektura: rdzeniem domu jest piętrowa dwukondygnacyjna bryła części mieszkalnej. Wokół niej dołączono parterowe części z poddaszami. Od frontu jest to część nad kuchnią i jadalnią, oraz skrzydło garaży i pomieszczeń gospodarczych. Od strony ogrodu natomiast jest to dodatkowe skrzydło zawierające salę basenową, oraz podcienie i tarasy przy salonie. Motywem przewodnim w architekturze rezydencji są duże narożne okna, podział elewacji na poziome pasy wykończone kontrastującymi materiałami, oraz układ łagodnych wielospadowych dachów, przykrywających piętrową i parterowe bryły, tworząc ciekawą kompozycję. Projekt domu Rezydencja z widokiem ma bardzo dużą powierzchnię, jednak dzięki właściwym proporcjom i zróżnicowaniu brył nie przytłacza. Z pewnością robi wrażenie luksusowej rezydencji, ale nie straszy swoją skalą. Do domu wchodzimy przez przeszklony narożnik z szerokimi reprezentacyjnymi drzwiami wejściowymi wprost do przedsionka. Stamtąd przeszklonymi drzwiami do pięknego holu otwierającego się na salon. Jednoprzestrzenne wnętrze holu, salonu, szerokich schodów, jadalni i kuchni tworzą wspólną przestrzeń dzienną domowników. Są jednocześnie doskonałą oprawą dla spotkań w większym i mniejszym gronie gości. Przestronna kuchnia z wyspą i pięknym narożnym oknem będzie z kolei dobrym miejscem do szybkich interakcji między domownikami w biegu dnia. Na parterze obok części dziennej przewidziano miejsce na apartament rodziców, składający się z sypialni, łazienki, dwóch garderób i gabinetu do pracy. Tę część domu można oczywiście dowolnie zaaranżować - według potrzeb inwestorów. Przy wejściu do domu mamy naprawdę duży garaż, oraz dodatkową przestrzeń gospodarczą z pomieszczeniem technicznym na instalacje. Za tą częścią domu znajduje się sala basenowa, z dużą 10-ciometrową niecką, sauną, natryskiem, oraz salką rekreacyjno-sportową na poddaszu-antresoli nad basenem. Wszystkie pokoje mają piękne okna na okalające dom tarasy. Na piętrze zaprojektowano aż pięć pokoi, dwie łazienki i pralnię. Z piętra można też przejść bez problemu do pokoju sportowego. Podziały piętra na pomieszczenia i nadanie pokojom innych funkcji są oczywiście możliwe. Przy monolitycznych żelbetowych stropach domu można właściwie dowolnie przestawiać ścianki działowe - wedle życzenia i wyobraźni właścicieli. Projekt domu Rezydencja z widokiem to z pewnością propozycja dla osób planujących budowę dużego domu. Taka willa to dla wielu osób spełnienie marzeń. Dom nie będzie najtańszy, ale jeśli można sobie na to pozwolić, to czy nie warto czasem podarować sobie „odrobinę” luksusu, po to, żeby piękniej żyć i mieszkać ? Zapraszamy !

Nie wiem czy to swiatło tak działa natym zdjeicu nocnym, ale dach ma naprawdę fajnie wyglądający poblask. Nawet jeśli to tylkozłudzenie to jeśli to tak ma wygldac przy swietle to właśnie zmieniam dach imontuje wokół domu lampy ;) super Archido, robi wrażenie.