Informujemy, iż nasz sklep internetowy wykorzystuje technologię plików cookies a jednocześnie nie zbiera w sposób automatyczny żadnych informacji, z wyjątkiem informacji zawartych w tych plikach (tzw. „ciasteczkach”).

piaskowo ab

  • Tylko online

Dane techniczne

powierzchnia
209.64 m²
wysokość
8.98 m
kąt dachu
35 °
szerokość działki
21 m
Liczba pokoi
8
Powierzchnia zabudowy
140.4
kondygnacje
z poddaszem użytkowym
garaż
bez garażu
dach
dach dwuspadowy
konstrukcja
murowane
zabudowa
domy bliźniacze
piwnica
bez piwnicy
kubatura
862.44 m³
dostępne odbicie lustrzane
Nie
Pow. użytkowa
209.64 m²
długość działki
18.8 m
Liczba łazienek
4
Pow. netto
221.24
Powierzchnia dachu
246.18 m²

Opis projektu

Dom z dwoma mieszkaniami. W każdym mieszkaniu: na parterze duży salon z aneksem kuchennym, kominkiem i wyjściem na taras. Łazienka, wiatrołap, pomieszczenie gospodarcze i schody na poddasze. Na poddaszu trzy pokoje, łazienka, komunikacja i dwa balkony. Zwarta bryła budynku i dach dwuspadowy sprzyjają szybkiej i taniej budowie i niskim kosztom eksploatacji.

Rzuty

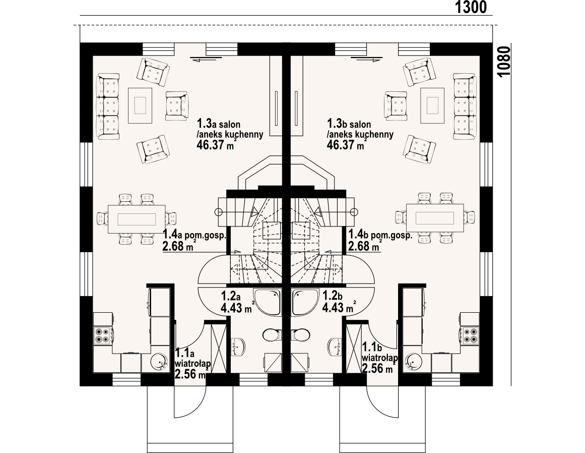
rzut parteru
1.1 wiatrołap
2.56
1.2 łazienka
4.43
1.3 salon z aneksem kuchennym
46.37
1.4 pom. gosp.
2.68
1.5 wiatrołap
2.56
1.6 łazienka
4.43
1.7 salon z aneksem kuchennym
46.37
1.8 pom. gosp.
2.68
rzut poddasza
2.1 komunikacja
3.51
2.2 pokój
11.58
2.3 pokój
15.45
2.4 pokój
11.04
2.5 łazienka
7.2
2.6 komunikacja
3.51
2.7 pokój
11.58
2.8 pokój
15.45
2.9 pokój
11.04
2.10 łazienka
7.2

Elewacje

Sytuacja

Przekrój

O autorze projektu piaskowo ab

6 999 zł

Tylko u nas możesz negocjować cenę!
Skorzystaj z tej możliwości.

Lustrzane odbicie: niedostępne.

Masz dodatkowe pytania?
Zadzwoń lub zamów rozmowę.

Zamów rozmowę

Pomożemy Ci dopasować do twoich potrzeb mymarzony projekt, wpisz swój numer telefonu nasz konsultant oddzwoni.

Negocjuj cenę projektu piaskowo ab

Zapytaj pytanie o projekt piaskowo ab

Oceny i komentarze

Napisz swoją opinię