- Tylko online
Masz pytania? Chciałbyś negocjować cenę
Zadzwoń! 577 575 011
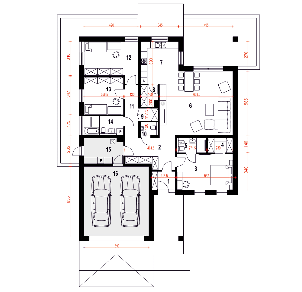
Pododna II to propozycja domu dedykowanego 3-4 osobowej rodzinie. Prosta bryła budynku przewidziana na planie kwadratu została przekryta kopertowym dachem o niewielkim kacie nachylenia. Strefa wejściowa do budynku wraz z garażem to spójna całość. Nowoczesna stylistyka elewacji stawia na naturalne barwy i materiały, dominują tu drewno i cegła. Funkcja domu to 3 pokoje sypialne w tym jedna typu masterbedroom z osobną łazienką i garderobą a także wspólna łazienka dla pozostałych mieszkańców. Pogodna kryje w swej bryle również salon z jadalnią i otwartą kuchnią ze spiżarnią. W strefie wejściowej znajdziemy dodatkową garderobę i wc. Z holu dostępna jest kotłownia a z niej garaż. Natomiast ze stanowiącego serce domu salonu dostaniemy się na przestronny, zadaszony taras.fundamenty: BETONOWE ściany zewnętrzne: POROTHERM+STYROPIAN TERMO ORGANIKA rodzaj stropu: TERIVA I elewacje: TYNK STRUKTURALNY pokrycie dachu: DACHÓWKA CEM. lub CER.
