- Tylko online
Masz pytania? Chciałbyś negocjować cenę
Zadzwoń! 577 575 011
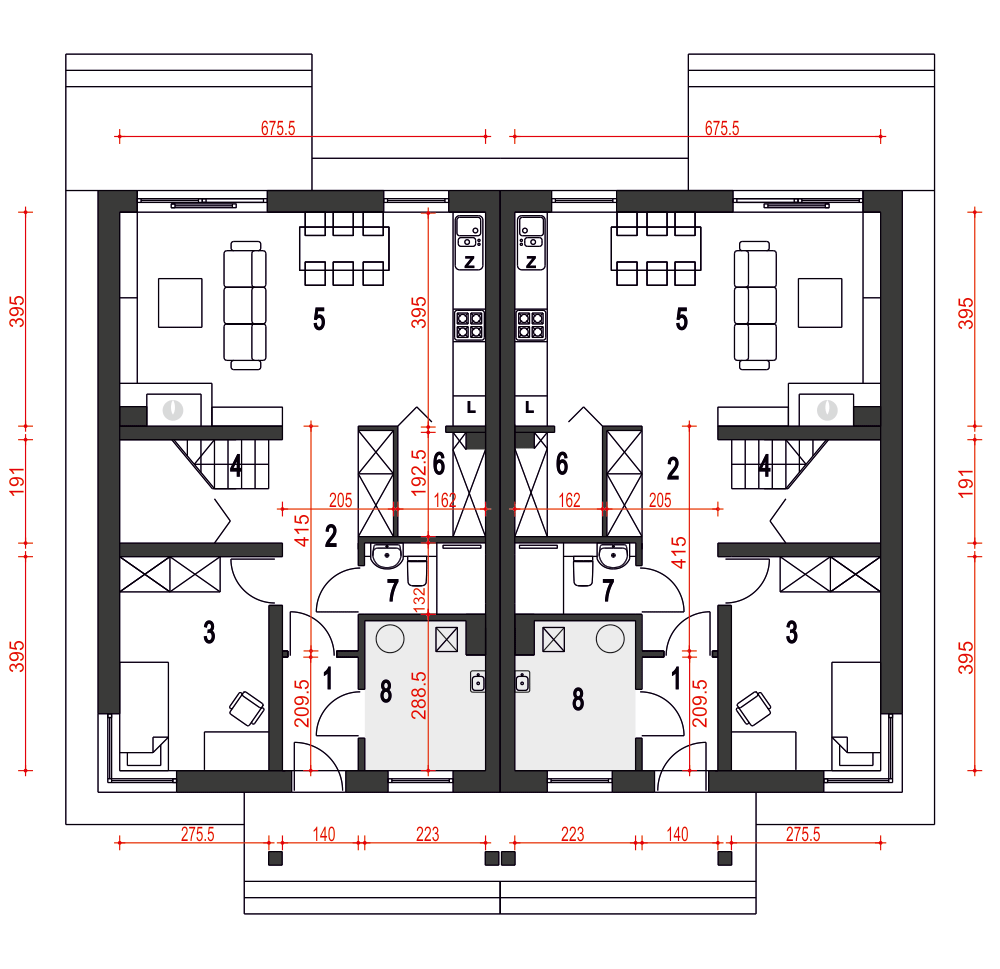
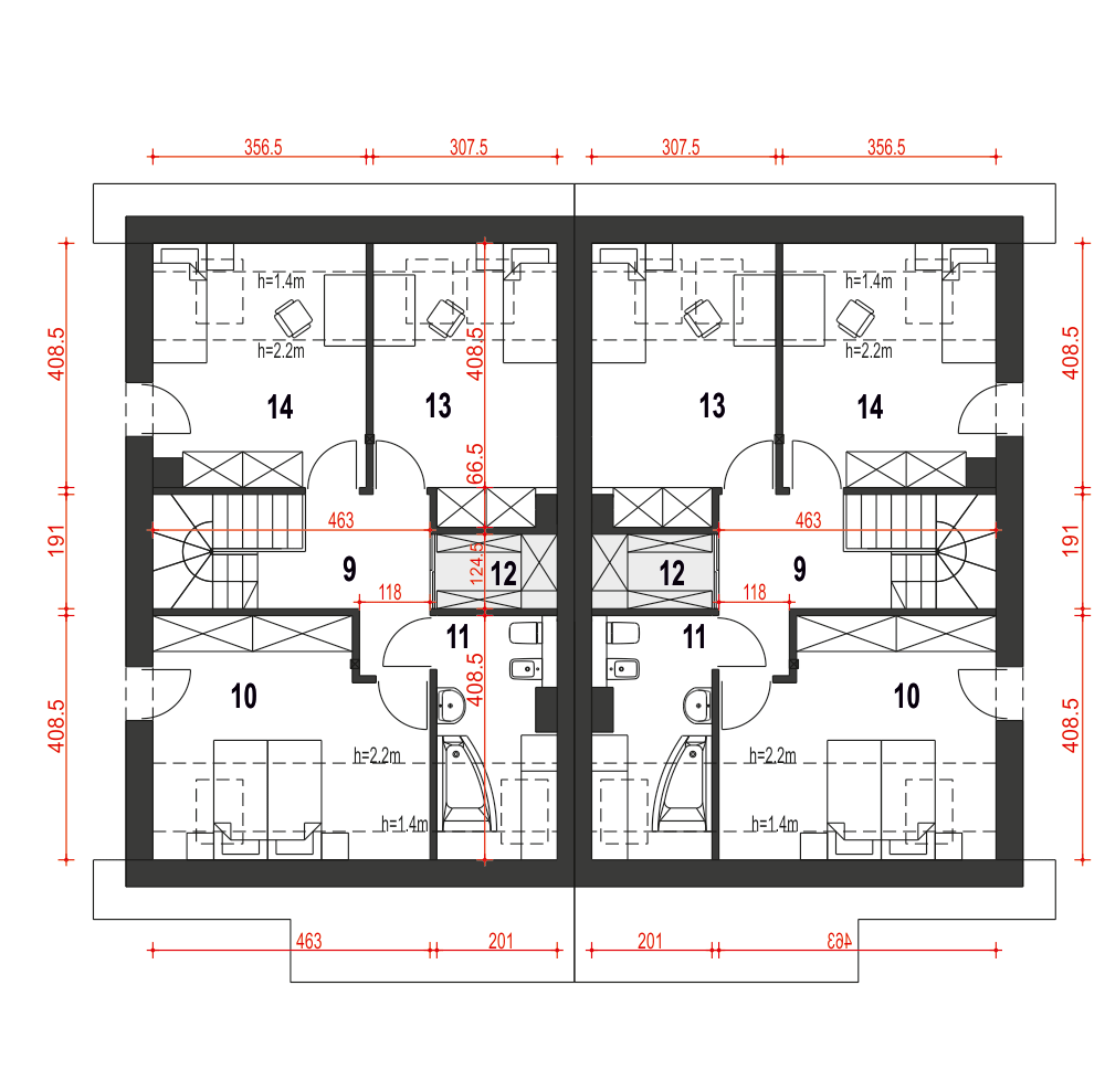
(Uwaga: projekty typu bliźniak oferujemy jako domy dwulokalowe, projekt można zamówić również w zabudowie bliźniaczej) Agat II B-BL1 to połączone dwa segmenty od strony kotłowni. Agat II to dom wpisujący się idealnie w ofertę budynków tanich i ekonomicznych w budowie i w eksploatacji, co udaje się osiągnąć poprzez optymalnie zaprojektowaną funkcję i zwartą bryłę. Opis poniżej dotyczy jednego segmentu. Agat II to dom nieduży, nowoczesny i wygodny dla 4-5 osobowej rodziny. Strefa wejściowa do budynku przewiduje wiatrołap z dostępem do pomieszczenia technicznego z piecem na paliwo stałe. Na parterze zaprojektowano jasny, praktyczny salon połączony z kuchnią , dodatkowy pokój, łazienkę oraz spiżarnię i garderobę wygospodarowaną w przestrzeni pod schodami. Na piętrze zaplanowano 3 sypialnie, garderobę oraz łazienkę.Projekt przeznaczony jest do zabudowy wolno stojącej ale również do zabudowy bliźniaczej. Może zostać zlokalizowany na małej i średniej działce.
