- Tylko online
Masz pytania? Chciałbyś negocjować cenę
Zadzwoń! 577 575 011
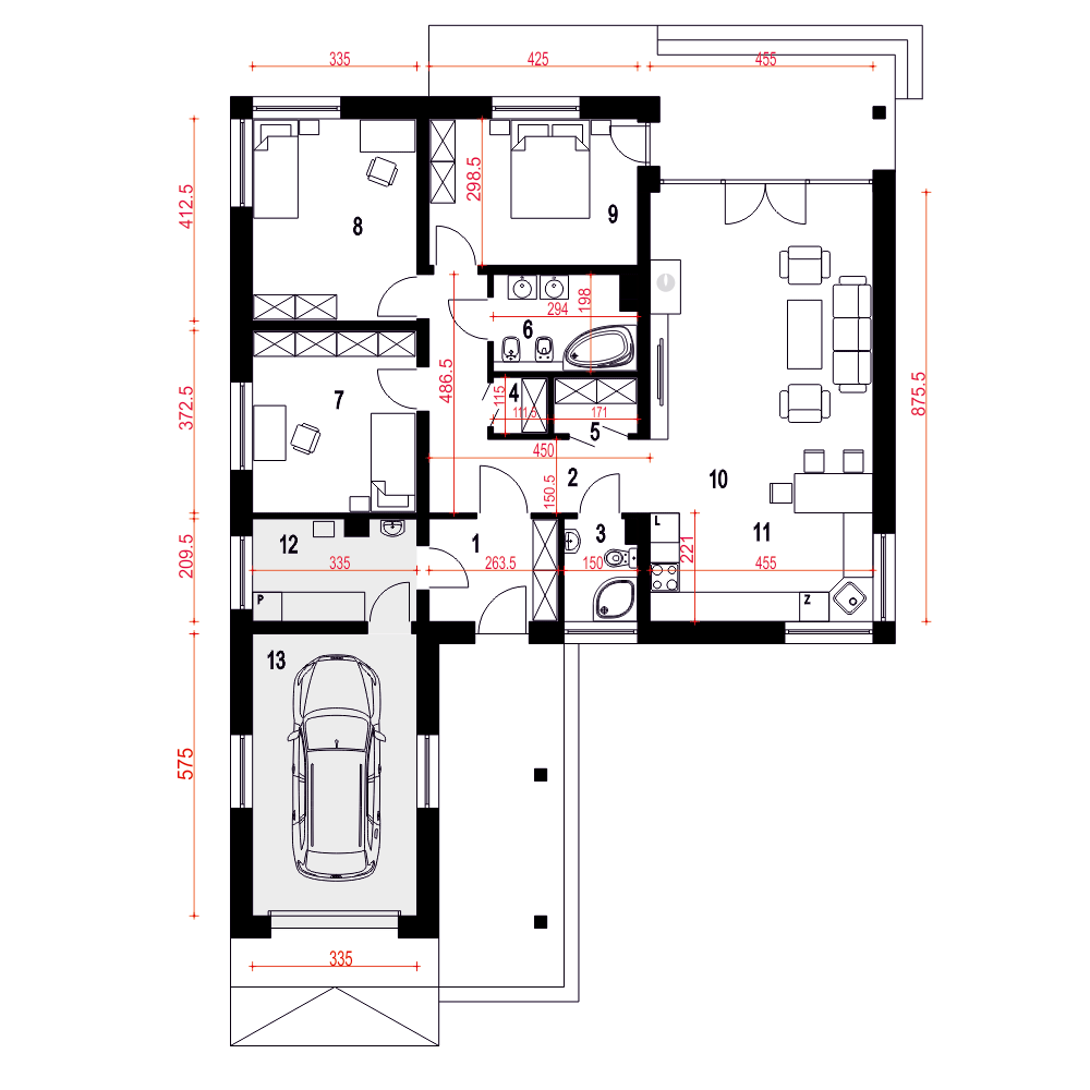
Dom parterowy, niepodpiwniczony, dla 4-5cio osobowej rodziny o prostej i wyważonej bryle z poddaszem przeznaczonym na cele magazynowe. Czytelny i funkcjonalny rozkład pomieszczeń oraz wyraźny ich podział na strefy dzienną i nocną daje poczucie komfortu i wygody. Strefa dzienną zaprojektowano jako otwartą, łączącą wejście główne i część ogrodową działki. Strefę nocną (3 sypialnie) zorganizowano wokół centralnie umieszczonej łazienki, garderoby i spiżarni. Z salonu zaprojektowano wyjście na zadaszony taras. Centralnie zlokalizowany kominek umożliwia rozprowadzenie ciepła po całym domu.fundamenty: BETONOWE ściany zewnętrzne: POROTHERM+STYROPIAN TERMO ORGANIKA ściany wewnętrzne: POROTHERM/ CEGŁ.DZIURAWKA rodzaj stropu: TERIVA I elewacje: TYNK, DREWNO pokrycie dachu: DACHÓWKA CERAMICZNA
