- Tylko online
Masz pytania? Chciałbyś negocjować cenę
Zadzwoń! 577 575 011
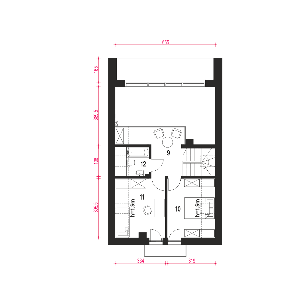
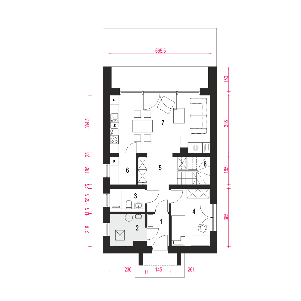
Projekt nowoczesnego domu, wpisujący się idealnie w trendy, oryginalny i nietuzinkowy. To właśnie Vikka, wyjątkowy dom w stylu skandynawskim, imponująca nowoczesna stodoła, idealny dla rodziny ceniącej sobie funkcjonalność i design. Duże przeszklenia gwarantują wspaniały widok na otaczającą dom przestrzeń i naturalne światło w pomieszczeniach. Vikka to projekt dla ludzi pragnących domu praktycznego i zarazem pięknego, lubiących oszczędność w formie, nowoczesny design, elegancję, połączenie naturalnych materiałów i kolorów. Dom tworzą parter i poddasze użytkowe, a także niewielki balkon i duży taras. Łączna powierzchnia to 87,5 metry kwadratowe, w tym 56,5 to parter, a 31,2 to pierwsze piętro. Na parterze znajduje się duży salon z kuchnią, pokój który może pełnić rolę gabinetu lub dodatkowej sypialni, łazienka, kotłownia oraz spiżarnia. Wchodząc na piętro widzimy antresolę z widokiem na salon i taras za jego oknami i dalej dwie sypialnie oraz łazienka. Tym, co wyróżnia projekt Vikka, jest z pewnością doskonale doświetlony, przeszkolony salon, pokój na parterze, dwie wygodne łazienki, nadające charakteru nowoczesnej bryle drewno na elewacji oraz antresola nad salonem. Vikka to projekt domu, który spełni oczekiwania rodziny 2+1 lub 2+2. Trzy zamknięte sypialnie, a także duży salon, w którym spędza się większość wolnego czasu spowoduje, że każdy będzie czuł się swobodnie. Podział na strefy dzienną na parterze i nocną na piętrze pozwala na zachowanie spokoju i balansu wtedy, gdy tego potrzebujemy. Imponujący taras okalający Vikkę stanowi przedłużenie salonu i sprawdzi się jako miejsce spotkań z przyjaciółmi lub odpoczynku.fundamenty: BETONOWE ściany zewnętrzne: POROTHERM+STYROPIAN TERMO ORGANIKA rodzaj stropu: ŻELBETOWY elewacje: TYNK STRUKTURALNY pokrycie dachu: BLACHA
