- Tylko online
Masz pytania? Chciałbyś negocjować cenę
Zadzwoń! 577 575 011
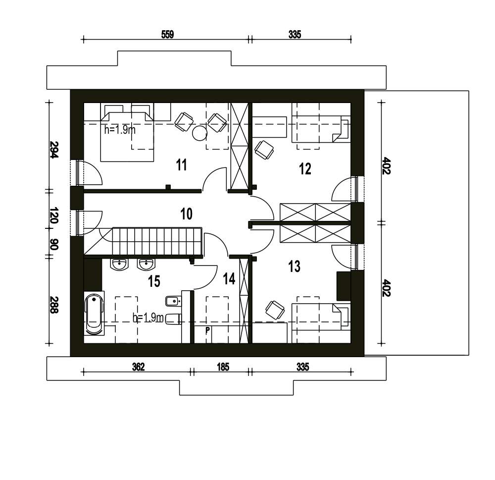
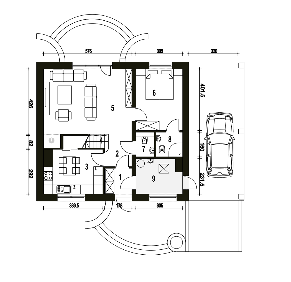
Dom Sosnówka II zaprojektowano na rzucie prostokąta gdzie kalenica jest równoległa względem elewacji frontowej. Doskonale wpisze się na nieduże działki o średniej wielkości i ze względu na typowy kształt będzie się dobrze komponował w każdym otoczeniu. Ze względu na prostą formę projekt ten zalicza się do tanich w budowie i eksploatacji. Widać tu wyraźny podział na strefę dzienną na parterze oraz nocną na poddaszu.Pod schodami umieszczono kominek. Na parterze oprócz przestronnego salonu zaprojektowano osobną kuchnię oraz pokój gościnny z indywidualną łazienką. Na tym poziomie mamy także wc oraz kotłownię pomieszczenie z piecem co przez które dostaniemy na zewnątrz wprost pod wiatę na 1 samochód.Na poddaszu zaplanowano 3 sypialnie oraz łazienkę i garderobę.
