- Tylko online
Masz pytania? Chciałbyś negocjować cenę
Zadzwoń! 577 575 011
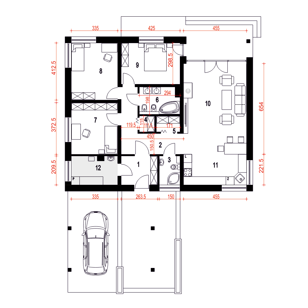
Tomaszek III Novum bez garażu to dom parterowy, niepodpiwniczony przeznaczony dla 4-ro osobowej rodziny. Prosta bryła z poddaszem na cele magazynowe oraz wyraźny podział na strefy nocna i dzienną sprawiają , że dom ten będzie nie tylko komfortowy ale również tani w budowie i użytkowaniu. Mamy tu salon z jadalnią i otwartą kuchnią oraz 3 sypialnie rozplanowane wokół centralnie umieszczonej łazienki.Projekt przewiduje też drugą łazienkę z prysznicem. Taras znajdziemy tu pod praktycznie przewidzianym podcieniem. Od frontu strefę wejściową i miejsce postojowe dla samochodu zadasza elegancka wiata połączona z główna bryła budynku.
