- Tylko online
Masz pytania? Chciałbyś negocjować cenę
Zadzwoń! 577 575 011
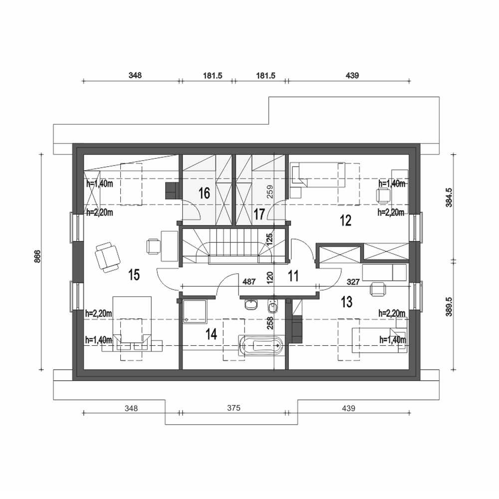
Westa to niewielki projekt domu z poddaszem użytkowym dla 4,5-osobowej rodziny. Charakteryzuje się współczesną formą. Elewację wykończono klinkierem oraz drewnem w ciepłym odcieniu. Nieskomplikowana bryła, dwuspadowy dach i prosta konstrukcja pozwolą na obniżenie kosztów budowy. Wejście do domu jak i taras z tyłu są zadaszone przedłużoną połacią dachową. Wnętrze domu to część dzienna mieszcząca się na parterze, w skład której wchodzi salon z jadalnią oraz aneksem kuchennym - wszystko to tworzy otwartą przestrzeń. Spiżarnia dostępna jest z kuchni. W centralnej części domu znajduje się kominek. Z korytarza dostępny jest pokój, który może służyć również jako gabinet, następnie łazienka i schody. Przestrzeń pod schodami można zagospodarować na schowek. Wiatrołap posiada przejście do garażu, na końcu którego znajduje się kotłownia z wyjściem na zewnątrz.Cześć nocna to poddasze, którego częścią są trzy sypialnie (dwie posiadają garderobę) oraz łazienka z miejscem na wannę jak i prysznic.fundamenty: BETONOWE ściany zewnętrzne: POROTHERM+STYROPIAN TERMO ORGANIKA rodzaj stropu: TERIVA I elewacje: TYNK STRUKTURALNY pokrycie dachu: DACHÓWKA CEM. lub CER.
